Extended home with large garage and gardens close to town amenities.
Extended two-bedroom semi-detached house with two bathrooms
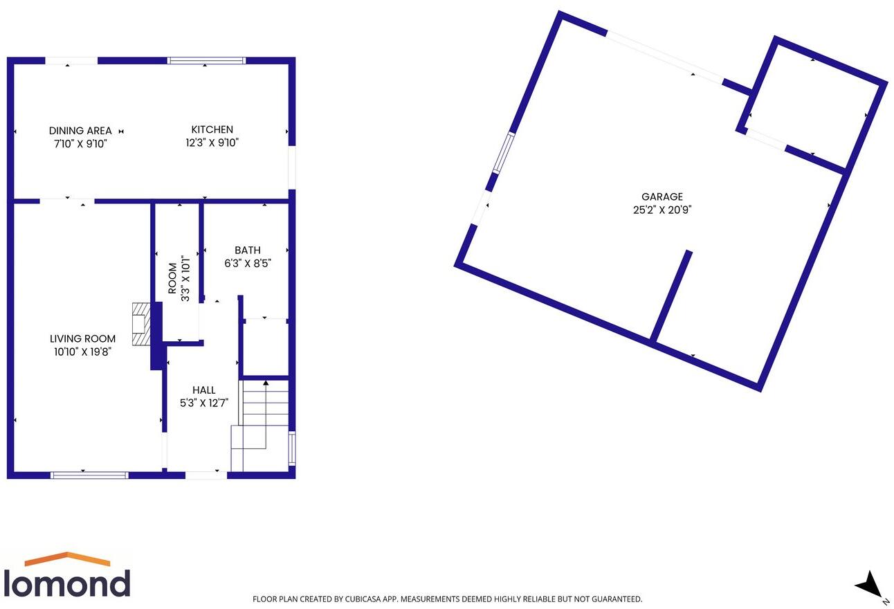
Large open-plan dining kitchen stretching the rear of the house
Front lounge, study/office and ground-floor WC/shower
Two large double bedrooms with full-length fitted wardrobes
Generous front, side and rear gardens plus off-street parking
Large double garage providing significant storage/parking space
Freehold tenure; no recorded flood risk, excellent mobile signal
Area is very deprived; local neighbourhood profile may affect resale
This extended two-bedroom semi-detached house on Oaklands Avenue offers practical family living with clear value drivers. The property benefits from a wide open-plan dining kitchen that spans the rear, a spacious front lounge, two large double bedrooms with full-length fitted wardrobes, and two bathrooms including a ground-floor shower/WC — useful for multigenerational or flexible living. A substantial double garage and off-street parking complement generous front and rear gardens, rare for the price band.
The house is freehold, set in a quiet cul-de-sac close to Irvine town centre, local schools and transport links to Glasgow. Broadband speeds are average and mobile signal is excellent, supporting working-from-home or family connectivity. There is no recorded flood risk for the site.
Buyers should note the wider area is classified as very deprived with local neighbourhoods described as hard-pressed and challenged; this may affect resale dynamics and local services. The property is described as average-sized overall and some buyers may want to inspect for typical mid‑20th-century maintenance issues or modernisation needs — no specific structural defects are stated in the information provided.
At the listed price of £110,000 the home presents appeal for first-time buyers or buyers seeking a practical family starter with garage space and garden. Investors should factor in the local area profile when modelling rental demand and yields.
2 bedroom end of terrace house for sale in Anderson Drive, Irvine, KA12 — £110,000 • 2 bed • 1 bath • 597 ft²
2 bedroom end of terrace house for sale in James Crescent, Irvine, KA12 — £90,000 • 2 bed • 1 bath • 364 ft²
3 bedroom semi-detached house for sale in 34 Ladyacre Wynd, Irvine, KA11 2FZ, KA11 — £210,000 • 3 bed • 3 bath • 850 ft²
2 bedroom semi-detached house for sale in 30 Birkscairn Way, Bourtreehill South, Irvine, KA11 1EB, KA11 — £90,000 • 2 bed • 1 bath • 634 ft²
3 bedroom semi-detached villa for sale in Lochlibo Court, Girdle Toll, Irvine, KA11 — £175,000 • 3 bed • 1 bath • 461 ft²
2 bedroom end of terrace house for sale in Donaldson Drive, Irvine, KA12 — £120,000 • 2 bed • 1 bath • 453 ft²


























































































