### Standout Features:
- Tenanted 24-bedroom hotel producing £52,000 annual revenue.
- Grade II listed, offering charm and potential for historic preservation.
- Prime location on The Promenade with views of Marine Lake and Kings Gardens.
- Off-street parking available.
- Close proximity to Southport's attractions including golf courses and entertainment venues.
### Potential Downsides:
- Only 2 years remaining on the current lease, which could limit financing options.
- Renovation and development are restricted due to listed status.
- Located in an area with high crime and noted deprivation.
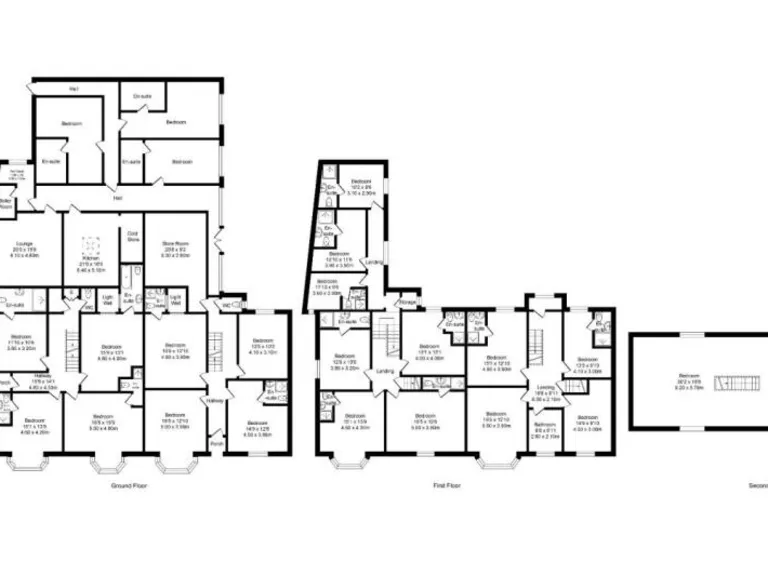
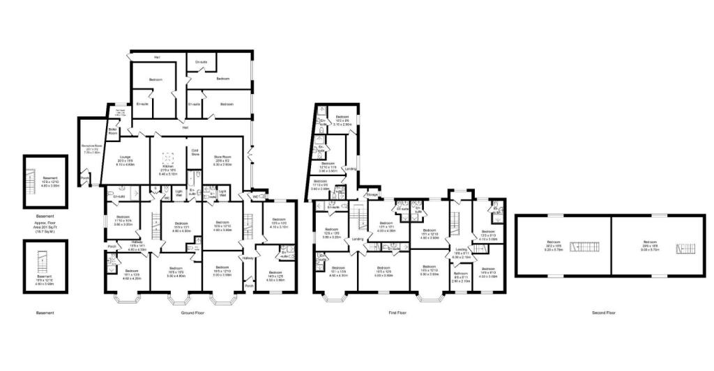
Situated in the heart of Southport, the Albert & Victoria Hotel offers a unique investment opportunity for those seeking a tenanted property with a reliable income. This Grade II listed hotel, comprising two adjoining Victorian villas, features 24 well-appointed bedrooms, some of which include mini-suites with kitchen facilities. Its enviable position on The Promenade allows for stunning views over Marine Lake, creating a scenic backdrop for guests. With its current lease generating £52,000 per year, it's an attractive prospect for investors looking to capitalize on Southport’s thriving tourism sector, particularly as England's Golf Coast draws golf enthusiasts year-round.
While the property boasts substantial charm and a strong rental history, potential buyers should note that it can be challenging to secure a mortgage due to only two years remaining on the lease. Additionally, the property's listed status may limit renovation possibilities. The location does experience higher crime rates; however, it remains conveniently accessible to local amenities and attractions. This opportunity is ideal for investors or hospitality professionals eager to leverage the growing interest in Southport's vibrant tourist appeal. Don’t miss out on this unique investment—properties like this don’t stay on the market for long!
Hotel for sale in Waterfront Southport Hotel , Promenade, Southport, PR9 — POA • 1 bed • 1 bath
Hotel for sale in Waterfront Southport Hotel, Promenade, Southport, PR9 0DZ, PR9 — £9,500,000 • 1 bed • 1 bath
Commercial property for sale in 49 Withnell Road, Blackpool, Lancashire FY4 1HE, FY4 — £125,000 • 1 bed • 1 bath
12 bedroom hotel for sale in 113 Albert Road, Blackpool, FY1 4PW, FY1 — £199,950 • 12 bed • 1 bath
Hotel for sale in Charnley Road, Blackpool, Lancashire, FY1 4PF, FY1 — £425,000 • 1 bed • 1 bath • 11915 ft²
Hotel for sale in The Braemar Guest House, 4 Bath Street, Southport, Merseyside, PR9 — £440,000 • 1 bed • 1 bath


































































