**Standout Features:**
- **Location**: 4th floor, contemporary apartment in Trinity Walk, close to Woolwich Town Centre.
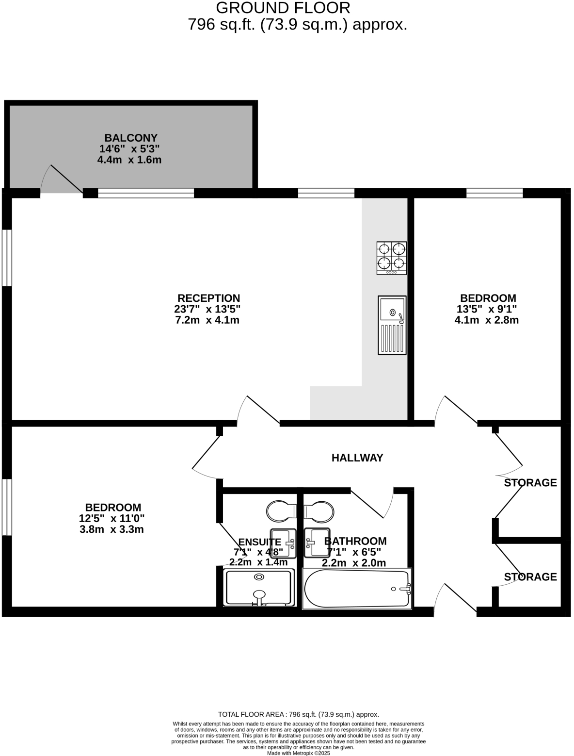
- **Size**: 796 sq. ft., two bedrooms, two bathrooms.
- **Living Space**: Open-plan kitchen/living area with large windows for natural light and a private balcony with city views.
- **Amenities**: Secure video entry system, NHBC warranty, fast broadband.
- **Transport Links**: Short walk to Woolwich Arsenal Station; easy access to DLR, Southeastern, Thameslink, and the Elizabeth Line.
- **Schooling**: Proximity to highly-rated primary schools, including St Peter's Catholic Primary.
This modern two-bedroom apartment offers an ideal blend of comfort, style, and convenience, making it perfect for first-time buyers, couples, or savvy investors. The open-plan living area, complete with stylish finishes and a private balcony, invites both relaxation and entertaining. Located near the bustling Woolwich Town Centre, you’ll have a plethora of supermarkets, restaurants, and leisure amenities right at your doorstep, all while benefiting from exceptional transport links for a seamless daily commute.
While the surrounding area has its challenges, such as high crime rates and concerns regarding community deprivation, the contemporary design of the apartment coupled with its secure features provides a reassuring environment within which to thrive. The apartment is in good condition, but those interested should be aware of the leasehold tenure nature. With strong rental potential in a recovering area, this property won't last long! Schedule a viewing today to experience the charm and convenience of urban living.
2 bedroom apartment for sale in 1 Moy Lane, Woolwich, SE18 — £425,000 • 2 bed • 3 bath • 822 ft²
2 bedroom apartment for sale in Brumwell Avenue, London, SE18 — £450,000 • 2 bed • 2 bath • 897 ft²
2 bedroom flat for sale in Tovell Court, Woolwich, London, SE18 — £425,000 • 2 bed • 2 bath • 814 ft²
2 bedroom flat for sale in Brumwell Avenue, London, SE18 — £325,000 • 2 bed • 1 bath • 840 ft²
2 bedroom apartment for sale in Rolfe Terrace, Woolwich, SE18 — £465,000 • 2 bed • 2 bath • 726 ft²
2 bedroom apartment for sale in Rolfe Terrace, London, SE18 — £400,000 • 2 bed • 2 bath • 839 ft²


















































































































