Three-bedroom apartment with balconies, garden and resident parking in sought SW4 location.
Second-floor Victorian mansion flat with high ceilings and period mouldings
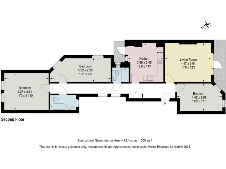
Set on the second floor of a Victorian mansion block, this three-bedroom apartment combines period character with practical living space. High ceilings, classic mouldings and two private balconies create a bright, elegant living environment ideal for entertaining or relaxed family life.
The layout includes a sitting room with balcony, kitchen/dining room with balcony, principal bedroom and two further double bedrooms, plus a shower room and family bathroom. Outside, residents benefit from a private communal garden and off-street resident parking — useful extras in this SW4 location.
Buyers should note this is a leasehold property in a building constructed before 1900, with solid brick walls and assumed lack of cavity insulation. The EPC rating of D indicates the property is not highly efficient and may benefit from targeted energy improvements. Council tax is moderate and the wider area shows pockets of deprivation despite a highly qualified local workforce.
This apartment will suit buyers seeking characterful London living with outdoor space and parking — families or professionals who value location, schools and connectivity but are prepared to make energy and retrofit improvements where desired.
3 bedroom flat for sale in Trouville Road, Clapham South, SW4 — £1,125,000 • 3 bed • 2 bath • 1018 ft²
3 bedroom apartment for sale in Manchuria Road, London, SW11 — £925,000 • 3 bed • 3 bath • 1262 ft²
3 bedroom flat for sale in Tyneham Close, Clapham, London, SW11 — £475,000 • 3 bed • 1 bath • 797 ft²
3 bedroom flat for sale in Balham Hill, Balham, SW12 — £725,000 • 3 bed • 2 bath • 879 ft²
1 bedroom flat for sale in Gauden Road, Clapham North, London, SW4 — £415,000 • 1 bed • 1 bath • 428 ft²
2 bedroom apartment for sale in Stanley Grove, London, SW8 — £675,000 • 2 bed • 2 bath • 824 ft²


























































































































































































































































