**Standout Features:**
- Detached three-bedroom home with en suite shower
- Large rear garden and off-road parking with garage
- No upward chain, offering a quick move
- Majority double glazing and gas central heating
- In need of modernisation – great potential for investors or families
- Located in a popular, family-friendly neighbourhood
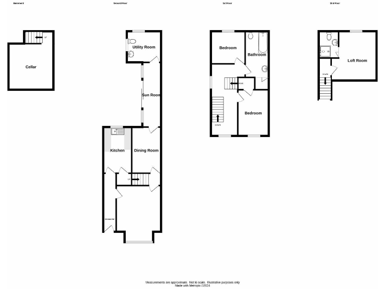
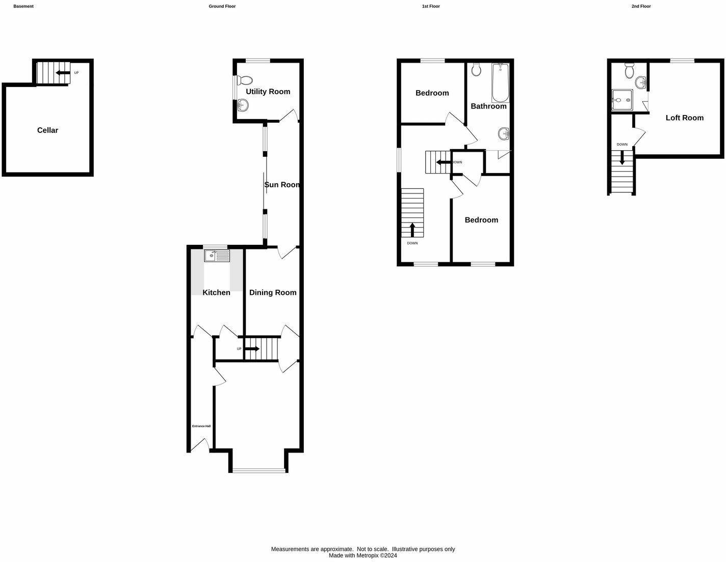
This spacious detached home is ideal for families or investors looking to add value. Featuring three well-proportioned bedrooms, including a master suite with an en suite shower, this property offers ample living space. The ground floor boasts two reception rooms, a utility/W.C., and a conservatory that overlooks a large, overgrown garden, providing a blank canvas for landscaping enthusiasts. Situated in an established road with easy access to local amenities and good schools, this residence also features the convenience of off-road parking and a garage.
While the house is in need of modernisation, it presents an excellent opportunity to create a bespoke living space tailored to your style. With no upward chain, this home won’t stay on the market for long—seize the chance to make it your own!
3 bedroom detached house for sale in Long Innage, Halesowen, B63 — £330,000 • 3 bed • 1 bath • 1186 ft²
3 bedroom detached house for sale in Cockshed Lane, Halesowen, West Midlands, B62 — £300,000 • 3 bed • 1 bath • 1297 ft²
3 bedroom semi-detached house for sale in HALESOWEN, Hilston Avenue, B63 — £275,000 • 3 bed • 1 bath • 1464 ft²
4 bedroom detached house for sale in HALESOWEN, Ormonde Close, B63 — £319,950 • 4 bed • 2 bath • 942 ft²
3 bedroom semi-detached house for sale in HALESOWEN, Albert Road, B63 — £285,000 • 3 bed • 1 bath • 689 ft²
3 bedroom semi-detached house for sale in Uplands Avenue, Rowley Regis, West Midlands, B65 — £250,000 • 3 bed • 2 bath • 937 ft²














































































































