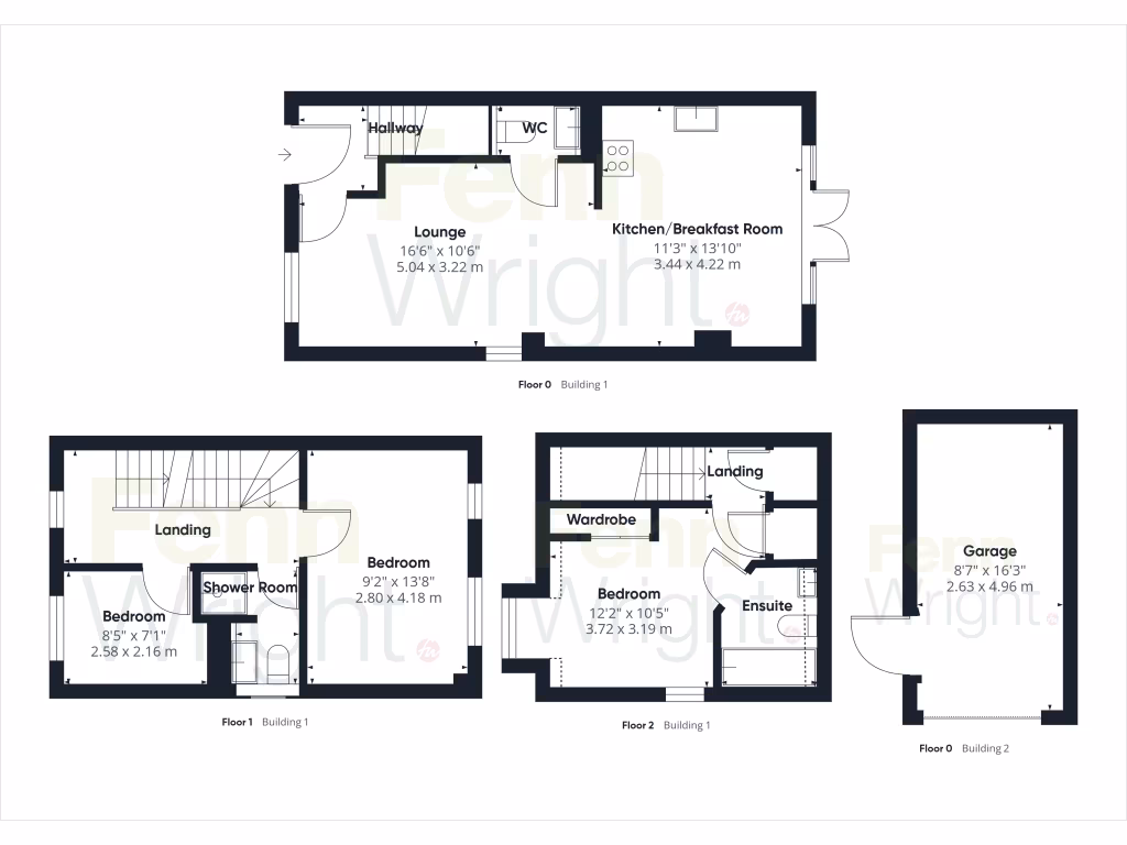
**Standout Features:**
- Modern three-bedroom semi-detached townhouse
- Open plan lounge/kitchen/breakfast area with glass vaulted ceiling
- Ensuite bathroom and additional shower room
- Garage with electric access
- Close proximity to highly-rated primary and secondary schools
- Freehold tenure
**Potential Concerns:**
- Small overall size (783 sq ft)
- Electric storage heaters may require maintenance
This stylish semi-detached townhouse presents an excellent opportunity for families seeking comfort in a well-connected neighborhood. With three bedrooms spread across three floors, this modern home boasts a welcoming open-plan lounge and kitchen/breakfast area, enhanced by a stunning glass vaulted ceiling. The well-maintained rear garden is perfect for outdoor relaxation, while the garage ensures convenient parking and additional storage.
Located within a stone's throw from popular schools and shopping facilities, this home offers an ideal blend of suburban living and accessibility, making it a prime choice for future family life. With council tax rates considered affordable and excellent local amenities close by, it’s an attractive investment for both families and first-time buyers. Don't miss out on this beautifully presented property—opportunities like these are rare to find!
3 bedroom semi-detached house for sale in Sealion Approach, Stanway, Colchester, Essex, CO3 — £350,000 • 3 bed • 2 bath • 712 ft²
4 bedroom semi-detached house for sale in Rhino Drive, Stanway, Colchester, CO3 — £465,000 • 4 bed • 3 bath • 979 ft²
3 bedroom end of terrace house for sale in St. Albright Crescent, Stanway, Colchester, CO3 — £350,000 • 3 bed • 2 bath • 824 ft²
3 bedroom semi-detached house for sale in Maypole Green Road, Colchester, CO2 — £350,000 • 3 bed • 2 bath • 1140 ft²
3 bedroom town house for sale in Martin Hunt Drive, Stanway, Colchester, CO3 — £350,000 • 3 bed • 2 bath
3 bedroom semi-detached house for sale in Ostrich Street, Stanway, Colchester, CO3 — £375,000 • 3 bed • 3 bath • 1185 ft²


























































































