**Standout Features:**
- Extended semi-detached house
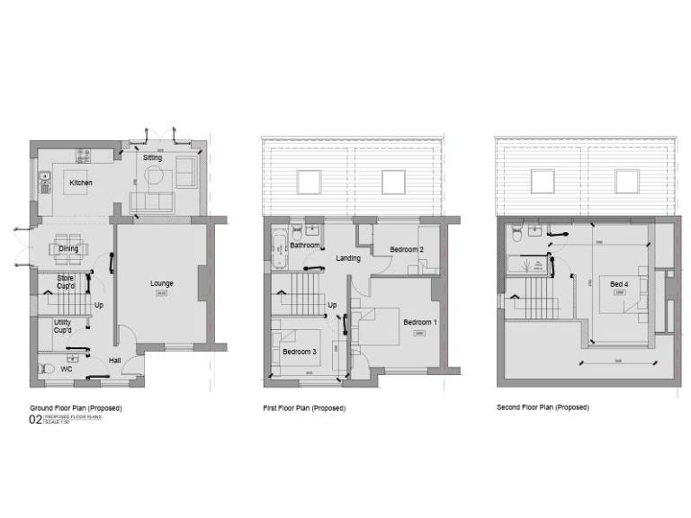
- Unfinished project with approved planning permission for a four-bedroom, two-bathroom layout
- Family-friendly location in the sought-after "Willows" area
- Spacious garden, off-street parking, and potential for renovation
- Close proximity to good-rated schools and amenities
Discover the potential of this extended semi-detached corner plot in the highly desirable area of Wrose, BD2. Currently offering three bedrooms and two reception rooms, the property awaits your vision to become a dream family home. With approved planning permission to transform it into an impressive four-bedroom, two-bathroom residence, it is perfect for families seeking space and comfort—or for savvy investors looking to secure future value.
The property's spacious garden, coupled with off-street parking, enhances its appeal, while its unfinished status allows you the freedom to truly make it your own. Located near several well-rated primary schools and a variety of amenities, it’s an ideal spot for family living. While you’ll need to navigate some renovation, this unique opportunity to create your perfect space won’t be available for long. Don’t miss your chance—arrange your viewing today and envision your new life in this promising home!
3 bedroom semi-detached house for sale in High House Road, Bradford, BD2 — £220,000 • 3 bed • 1 bath • 592 ft²
4 bedroom semi-detached house for sale in Willow Crescent, Wrose, Bradford, BD2 — £300,000 • 4 bed • 1 bath • 1369 ft²
6 bedroom detached house for sale in Bolton Drive, Eccleshill, Bradford, BD2 — £400,000 • 6 bed • 2 bath • 2000 ft²
3 bedroom semi-detached house for sale in Robin Close, Eccleshill, Bradford, BD2 — £230,000 • 3 bed • 1 bath • 936 ft²
2 bedroom semi-detached house for sale in Greenwood Drive, Swain House, Bradford, BD2 — £140,000 • 2 bed • 1 bath • 700 ft²
2 bedroom semi-detached house for sale in Lichfield Mount, Bradford, BD2 — £160,000 • 2 bed • 1 bath • 560 ft²


































































