Large plot, sea views, huge parking and generous rooms — scope to improve energy efficiency..
40’ raised sun terrace with panoramic sea views
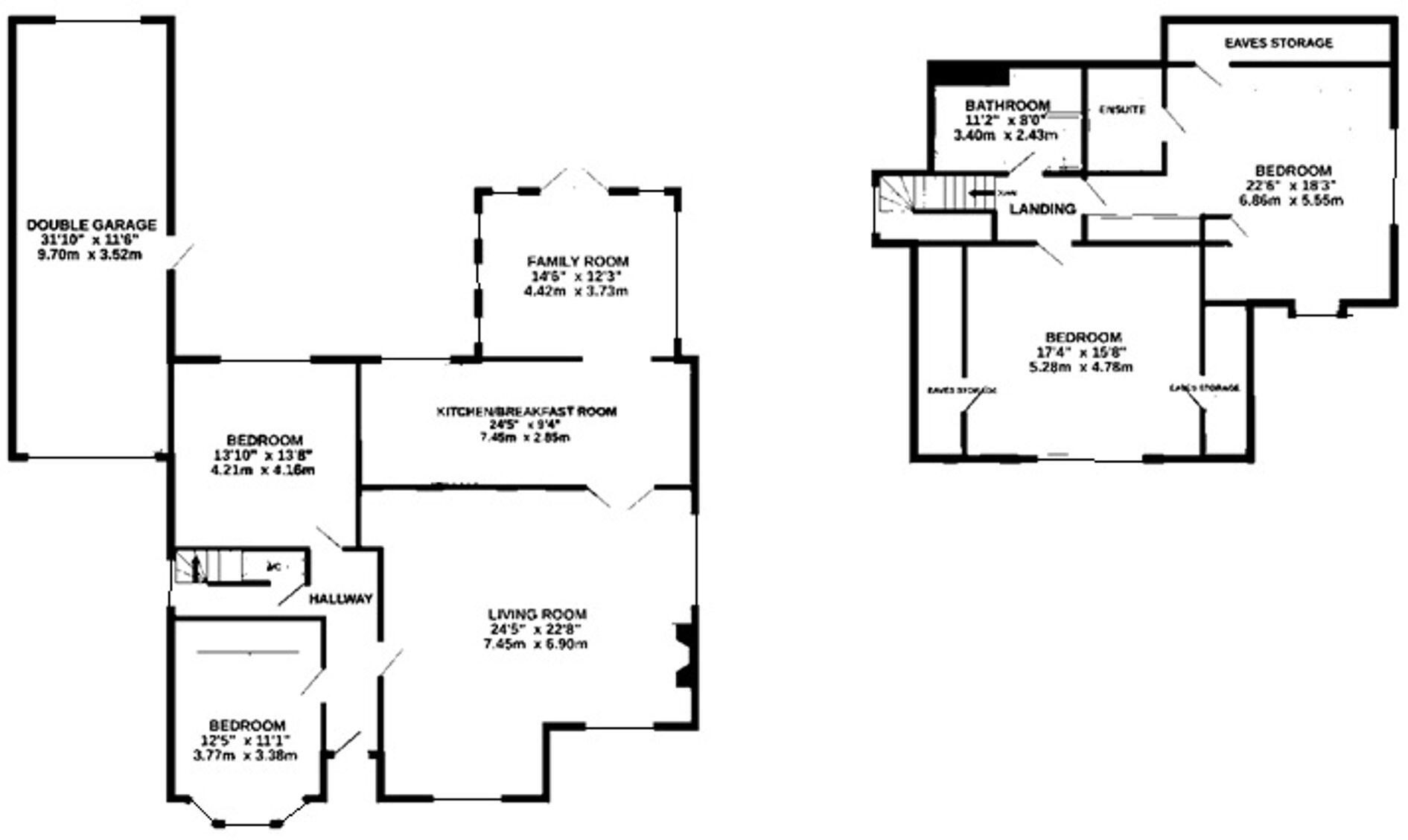
This spacious four-bedroom detached house occupies a large plot in Woodingdean, offering particularly generous room sizes and a striking 40’ raised sun terrace with sea views. The layout spreads over two levels: a large lounge with gas-stove fireplace, an extensively-fitted kitchen/breakfast room with island, a bright family/conservatory room, two ground-floor double bedrooms, and two further large first-floor bedrooms including a main with en-suite.
Outdoor space and parking are standout features — a rear garden (approx. 55’ x 50’) laid to lawn on two levels, large deck and paved patio, plus off-street parking for eight-plus cars and a double-length garage with power and light. The property has been extended and improved by the long-term owners and sits in an affluent, low-crime neighbourhood with good local schools and easy A27/M23 access; Brighton centre is about five miles away.
Practical points to note: the house dates from the 1950s–60s, has cavity walls with no added insulation (assumed), and double glazing was installed before 2002. The EPC is C and further energy efficiency improvements (wall insulation, modern glazing) could reduce running costs. Services and some measurements are untested and are presented as believed correct.
For buyers seeking roomy family accommodation or those downsizing without sacrificing space, this freehold home delivers generous proportions, excellent outdoor entertaining areas and strong parking — while presenting clear upgrade opportunities around insulation and window technology.
4 bedroom detached bungalow for sale in Crescent Drive North, Brighton, BN2 — £550,000 • 4 bed • 2 bath • 1397 ft²
4 bedroom detached house for sale in Crescent Drive North, Brighton, BN2 — £650,000 • 4 bed • 2 bath • 1395 ft²
4 bedroom semi-detached house for sale in Crescent Drive North, Woodingdean, BN2 — £500,000 • 4 bed • 2 bath • 1261 ft²
4 bedroom detached bungalow for sale in Cowley Drive, Brighton, BN2 — £500,000 • 4 bed • 1 bath • 15040 ft²
4 bedroom detached house for sale in Frimley Close, Brighton, East Sussex, BN2 — £775,000 • 4 bed • 2 bath • 1436 ft²
4 bedroom detached house for sale in Queen Victoria Avenue, Hove, East Sussex, BN3 — £1,175,000 • 4 bed • 2 bath • 1767 ft²










































































































































































































