Renovated four-bed with large garden and double driveway, ideal for growing families.
Corner plot with one of the largest gardens on the development
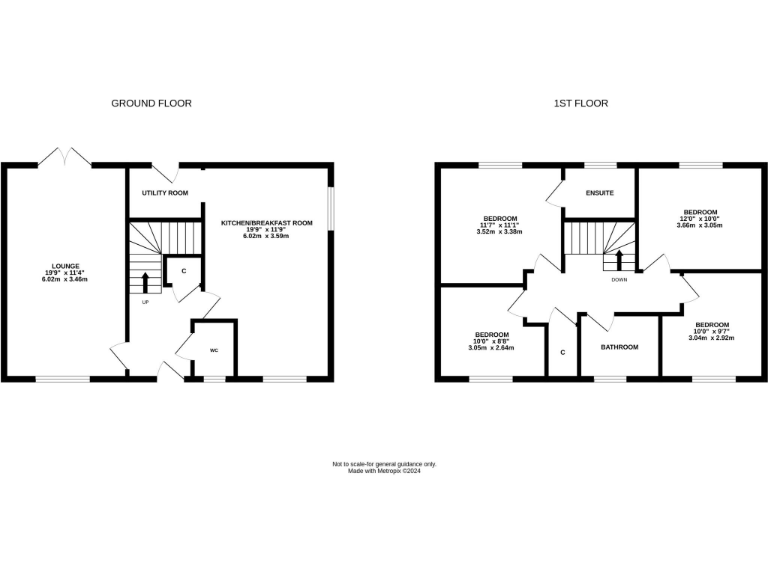
This well-presented detached home sits on a prominent corner plot with one of the largest gardens on the development, giving outdoor space and privacy for family life. The ground floor opens to a generous lounge and a large kitchen/breakfast/family room with integrated appliances, plus a utility and downstairs w.c., making daily routines straightforward. A double driveway and single garage provide secure parking.
Upstairs are four bedrooms, including a master with an en-suite, and a family bathroom. The house has been newly renovated, benefits from double glazing, gas central heating and fast broadband, so it is largely move-in ready for a growing family. Local schools rated Good are within reach, and there is no flood risk.
Buyers should note the property’s overall internal size is compact (around 784 sq ft) for a four-bedroom detached, so some rooms are modest in scale. There are estate-type restrictive covenants affecting the plot; further enquiries are recommended if you need flexibility for extensions or specific external changes. Council Tax band D and average local crime levels reflect an established suburban setting.
This home will suit families seeking a modern, low-maintenance property with substantial outside space and good parking, but those needing larger internal living areas or planning major alterations should check covenant details and room sizes first.
4 bedroom detached house for sale in Herriot Court, Darlington, DL1 — £270,000 • 4 bed • 2 bath • 1074 ft²
3 bedroom semi-detached house for sale in Nickleby Lane, Darlington, DL2 — £240,000 • 3 bed • 2 bath • 734 ft²
4 bedroom detached house for sale in Nunnery Lane, Darlington, DL3 — £290,000 • 4 bed • 1 bath • 950 ft²
4 bedroom detached house for sale in Hayle Court, Darlington, DL3 — £250,000 • 4 bed • 2 bath • 1346 ft²
4 bedroom detached house for sale in Greener Drive, Darlington, DL1 5JP, DL1 — £335,000 • 4 bed • 2 bath • 1518 ft²
4 bedroom detached house for sale in Largo Gardens, Darlington, DL1 — £285,000 • 4 bed • 2 bath • 1141 ft²














































































