**Standout Features:**
- **Two double bedrooms** and **two bathrooms** (one en suite) in a modern high-rise apartment.
- **Luxury specification** with wooden flooring, floor-to-ceiling windows, and ample storage.
- **24-hour concierge** service and **secure underground parking** included.
- Excellent **location** within walking distance to local amenities and multiple transport links.
- **Broadband speeds** are fast, enhancing connectivity for work or leisure.
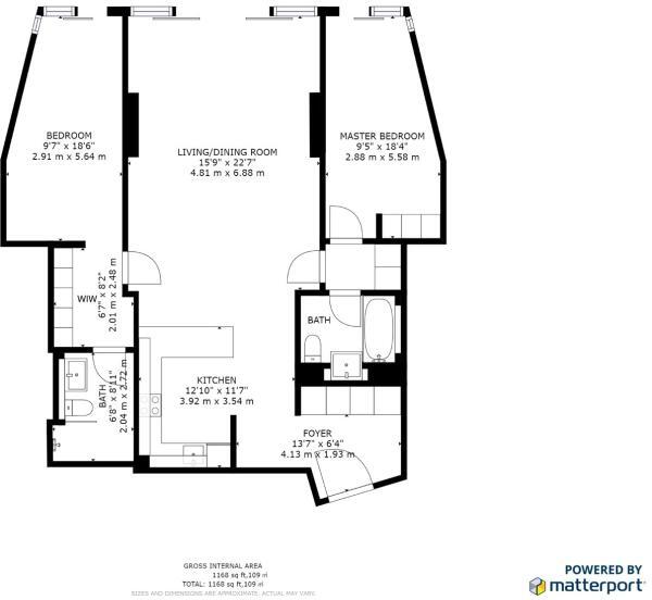
Nestled on the tenth floor of a modern development at Merchant Square, Paddington, this remarkable two-bedroom apartment spans an impressive 1,168 square feet. The well-designed layout features an open-plan reception area filled with natural light, providing a perfect setting for both relaxation and entertaining. The master suite boasts a walk-in wardrobe and an en suite bathroom, while the second bedroom is generously sized with additional fitted storage.
While this property enjoys an excellent location with walkable access to a plethora of amenities—from restaurants and cafes to shops and transport services—it's important to note that crime rates in the area are relatively high. This factor may warrant consideration for discerning buyers. Ideal for investors, professionals, or families looking for a chic urban lifestyle, this apartment combines modern comfort with convenience in the heart of London. Don’t miss your opportunity to explore this luxurious living space!
2 bedroom apartment for sale in Merchant Square, Paddington, W2 — £1,750,000 • 2 bed • 2 bath • 1150 ft²
2 bedroom flat for sale in Merchant Square, London, W2 — £1,495,000 • 2 bed • 2 bath • 973 ft²
2 bedroom apartment for sale in Merchant Square, Paddington, London, W2 — £1,295,000 • 2 bed • 2 bath • 1129 ft²
3 bedroom apartment for sale in Merchant Square, London, W2 — £4,950,000 • 3 bed • 3 bath • 1963 ft²
2 bedroom apartment for sale in Merchant Square East, W2 — £1,275,000 • 2 bed • 2 bath • 1023 ft²
3 bedroom flat for sale in Merchant Square East, Paddington, W2 — £1,400,000 • 3 bed • 2 bath • 1135 ft²


















































































