**Standout Features:**
- Prestigious second-floor flat in a grand Victorian mansion block
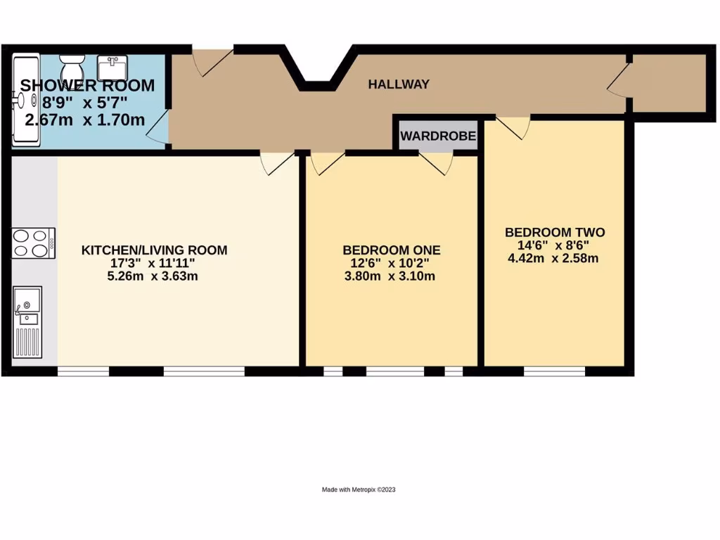
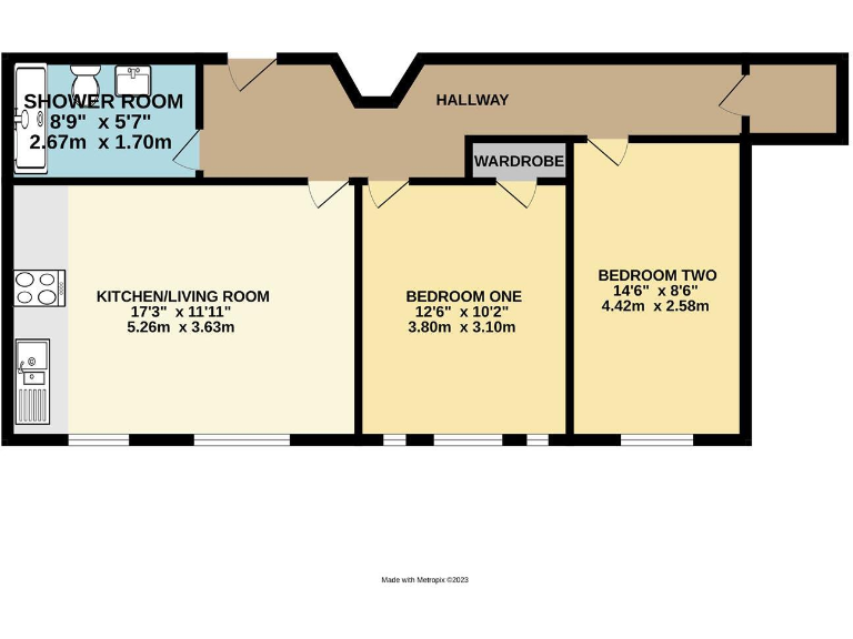
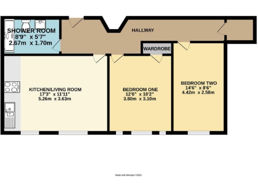
- 2 double bedrooms with built-in wardrobe space and sea views
- Bright and spacious open-plan living room and kitchen
- Short walk to Priory Meadow shopping center, restaurants, and Hastings mainline train station
- Double glazing, electric heating, and communal lift
**Concerns:**
- Leasehold with approximately 128 years left and above-average service charge of £4,394.10 per annum
- High crime rate in the area and average broadband speed
- Basic insulation due to historical construction methods
**Summary Description:**
Immerse yourself in the coastal charm of this elegant two-bedroom flat in Hastings' prestigious Queens Apartments. Nestled within a beautiful Victorian building, this second-floor residence boasts stunning sea views and easy access to essential amenities, including shops, bars, and the mainline train station, making it perfect for both first-time buyers and commuters. The inviting open-plan living room and kitchen area provide a great space to entertain or unwind, while both generously sized bedrooms showcase abundant natural light and beautiful views. A modern shower room completes the smart layout, enhancing this apartment's appeal.
While the property offers a unique urban living experience with strong rental potential, potential buyers should note the above-average service charge and high crime rate in the area. With minor renovations, this flat can become a cozy retreat in a vibrant neighborhood famed for its culture and beauty. Don't miss this opportunity to invest in a stylish, compact home in Hastings—where seaside living meets city convenience!
2 bedroom flat for sale in Robertson Terrace, Hastings, TN34 — £325,000 • 2 bed • 2 bath • 1289 ft²
2 bedroom flat for sale in Robertson Terrace, Hastings TN34 — £350,000 • 2 bed • 1 bath • 787 ft²
2 bedroom flat for sale in Castle Hill Road, Hastings, TN34 — £155,000 • 2 bed • 1 bath • 450 ft²
1 bedroom flat for sale in Robertson Terrace, Hastings, TN34 — £100,000 • 1 bed • 1 bath • 528 ft²
2 bedroom penthouse for sale in Robertson Terrace, Hastings, TN34 — £325,000 • 2 bed • 1 bath • 958 ft²
1 bedroom flat for sale in Robertson Terrace, Hastings, TN34 — £100,000 • 1 bed • 1 bath • 592 ft²






















































