Modern family home with private garden and two parking spaces.
Two private off-street parking spaces immediately to the rear
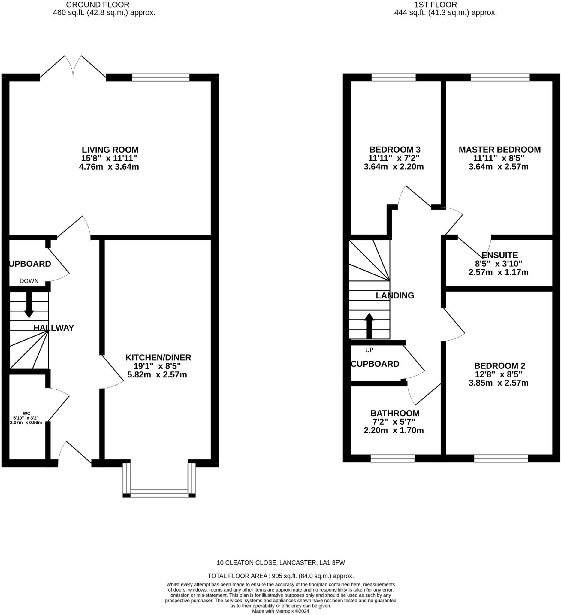
Master bedroom with en-suite shower room
Open-plan kitchen-diner with integrated appliances
Large living room with French doors to private garden
Downstairs WC and modern family bathroom
EPC B, gas central heating, double glazing throughout
Freehold tenure; approximately 905 sq ft living space
Local recorded crime level above average — check local data
Set on the desirable High Wood estate, this modern three-bedroom semi offers practical family living with low-maintenance features. The open kitchen-diner and large living room with French doors create a bright ground-floor social space, while a downstairs WC and two private parking spaces add everyday convenience. The master bedroom includes an en-suite and there is a modern family bathroom plus a useful first-floor layout for growing families.
Built by Story Homes and finished with gas central heating and double glazing throughout, the property achieves an EPC B rating and presents well-maintained interiors and exterior. The rear garden is private with paved seating and lawn, and a generous communal grass area to the front provides safe play space for children. Lancaster city centre, universities and well-regarded schools are all a short drive or stroll away.
Buyers should note the location is in a small-town fringe area where local recorded crime is above average; prospective purchasers may wish to check local statistics. The house is an average overall size at around 905 sq ft on a large plot and is offered freehold — sensible for families seeking a straightforward tenure. The property is ready to occupy with no material defects reported in the details provided.
3 bedroom semi-detached house for sale in Kershaw Drive, Lancaster, LA1 — £325,000 • 3 bed • 3 bath • 923 ft²
4 bedroom detached house for sale in Coleman Drive, Lancaster - Desirable High Wood Estate, LA1 — £495,000 • 4 bed • 1 bath • 1040 ft²
4 bedroom detached house for sale in Cassidy Drive, Lancaster | Desirable High Wood, LA1 — £600,000 • 4 bed • 1 bath • 1592 ft²
3 bedroom terraced house for sale in Woodlea Court, Lancaster | Private Cul de sac position, LA1 — £295,000 • 3 bed • 1 bath • 893 ft²
3 bedroom semi-detached house for sale in Masonfield Crescent, Lancaster, LA1 — £285,000 • 3 bed • 3 bath • 720 ft²
3 bedroom semi-detached house for sale in Cassidy Drive, Lancaster, LA1 — £310,000 • 3 bed • 2 bath • 936 ft²






































































































