**Standout Features:**
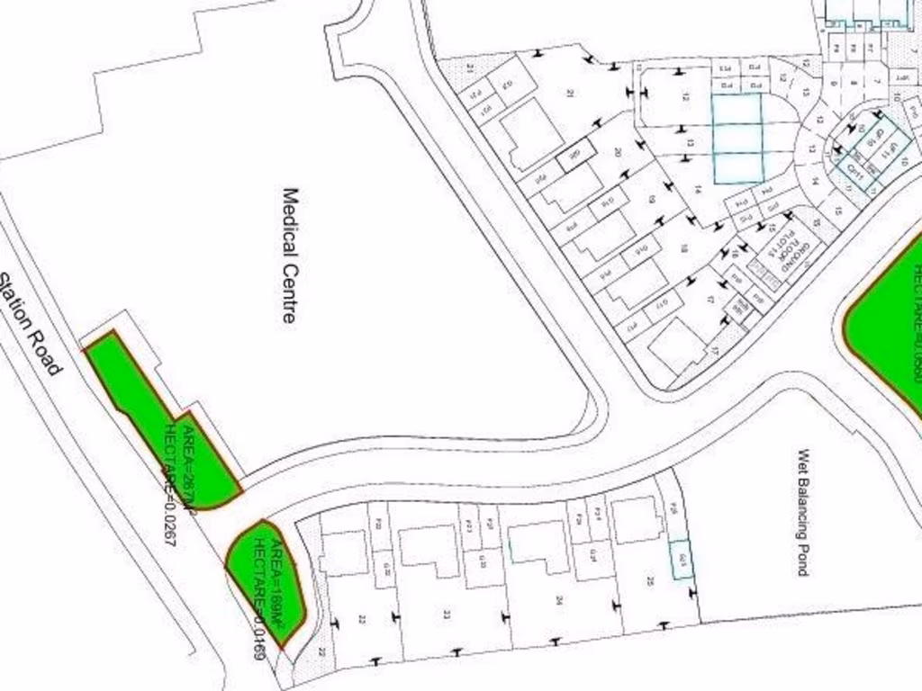
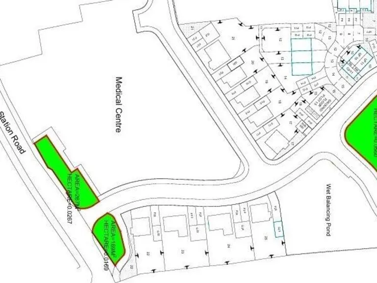
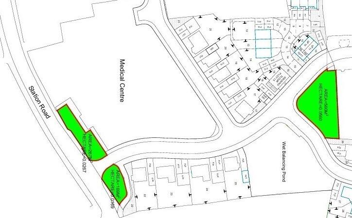
- **Large vacant land plot:** Approximately 0.25 acres (1,191 sq yd).
- **Freehold tenure:** Secure ownership opportunity.
- **Development potential:** Subject to planning permission.
- **Excellent location:** Adjacent to a medical center with nearby amenities.
- **Auction sale:** Set for April 9, 2025, with a guide price of £750 plus VAT.
**Notable Concerns:**
- **Planning restrictions:** Subject to a development uplift clause (30% of any value increase for 30 years).
- **Covenants in place:** Restrictions on mobile home placements without consent.
- **Above average crime rate** in the area may be a consideration for some buyers.
Unlock the potential of this expansive vacant land situated in a residential area, primed for development or investment. With a highly accessible location near medical facilities and local amenities, this property presents an excellent prospect for buyers looking to build residential units or capitalize on future growth. Ideal for seasoned investors or first-time developers, the property offers a spacious plot free from immediate structures, providing a blank canvas with deep future potential.
Be quick to seize this unique opportunity at a guide price starting from just £750 plus VAT! The auction is your chance to secure a prime piece of real estate with the possibility for transformation and value increase, despite the restrictive covenants and planning stipulations. Don’t miss out—this land could be your next big project!
Land for sale in Brookfield Way, Lutterworth, Leicestershire, LE17 4EZ, LE17 — £4,500 • 1 bed • 1 bath • 872 ft²
Land for sale in Former Motor Forecourt, Land at Main Street, Humberstone, Leicester, LE5 1AE, LE5 — £3,000 • 1 bed • 1 bath • 820 ft²
Land for sale in Land off Waterside Road, Hamilton, Leicester, LE5 1TL, LE5 — £5,000 • 1 bed • 1 bath
Land for sale in Lutterworth Road, Blaby, Leicester, LE8 — £15,000 • 1 bed • 1 bath
Land for sale in Saffron Road, Leicester, Leicestershire, LE18 — £7,000,000 • 1 bed • 1 bath
Land for sale in Heyworth Road, Leicester, LE3 — £90,000 • 1 bed • 1 bath


















