- Built in 2018; modern construction and fixtures
- Two large double bedrooms, first-floor family bathroom
- Open-plan dining kitchen with integrated appliances
- Low-maintenance rear garden with artificial grass and patio
- Gated driveway providing off-street parking
- Chain-free sale; potential freehold conversion on completion (confirm legally)
- Compact 811 sq ft footprint; rooms modest in size
- Located in a very deprived/hampered neighbourhood; mixed local school ratings
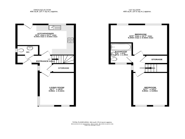
Built in 2018, this modern two-bedroom semi-detached home offers straightforward, low-maintenance living and is available with no chain. The ground floor has a bright living room, an open-plan dining kitchen with integrated appliances, downstairs WC and useful understairs storage. Two large first-floor bedrooms and a family bathroom complete the accommodation across a compact 811 sq ft footprint.
Outside, the property benefits from a paved rear patio and artificial grass for easy upkeep, plus a gated driveway for off-street parking. Broadband and mobile signals are strong, and local transport links and amenities are within easy reach, making the house practical for commuting or rental occupancy.
Important practical points: the wider area is classified as very deprived / hampered neighbourhoods and nearby school ratings are mixed, which may influence family buyers and some investors. If buying 100% ownership, the property is understood to convert to freehold on completion — buyers should confirm this with their solicitor. Overall this is a compact, modern home suited to first-time buyers or buy-to-let purchasers seeking low-maintenance, chain-free entry to the market.



























































