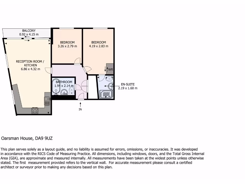
Bright open-plan home with allocated parking and no onward chain.
Stunning river views from private outdoor space
Set on the first floor of a modern riverside development, this two-bedroom flat offers a bright open-plan living space and private outdoor space accessed from the reception. The larger bedroom includes an ensuite, and both bedrooms are proportionate for comfortable everyday use. An allocated off-street parking bay and lift access add practical convenience.
The property is offered with no onward chain and a long lease (around 977 years), making it straightforward for buyers seeking a quick move or a low-risk investment. Energy efficiency is reasonable with an EPC C, and mains services plus fast broadband are available.
Buyers should note a planned removal of cladding under a scheduled works programme from October 2025 to March 2026 — this is already booked to be completed. The annual service charge and ground rent are notable: approximately £3,437 pa service charge and £371 pa ground rent, so budget for ongoing holding costs. Overall this is a modern, well-located flat suited to first-time buyers, downsizers or investors who value waterside views and convenience but want clarity on future maintenance costs.
2 bedroom flat for sale in Clovelly Place, Greenhithe, Kent, DA9 — £240,000 • 2 bed • 1 bath • 732 ft²
2 bedroom flat for sale in The Boulevard, Greenhithe, Kent, DA9 — £325,000 • 2 bed • 2 bath • 947 ft²
2 bedroom flat for sale in Clovelly Place, Greenhithe, Kent, DA9 — £260,000 • 2 bed • 2 bath • 681 ft²
2 bedroom flat for sale in Portland Place, Greenhithe, Kent, DA9 — £200,000 • 2 bed • 2 bath • 648 ft²
2 bedroom flat for sale in Carmichael Avenue, Greenhithe, Kent, DA9 — £240,000 • 2 bed • 2 bath • 775 ft²
2 bedroom flat for sale in Clarinda House, Clovelly Place, Greenhithe, Kent, DA9 — £280,000 • 2 bed • 2 bath • 719 ft²






























































