Practical two-bed semi with driveway, summer house and shops minutes away..
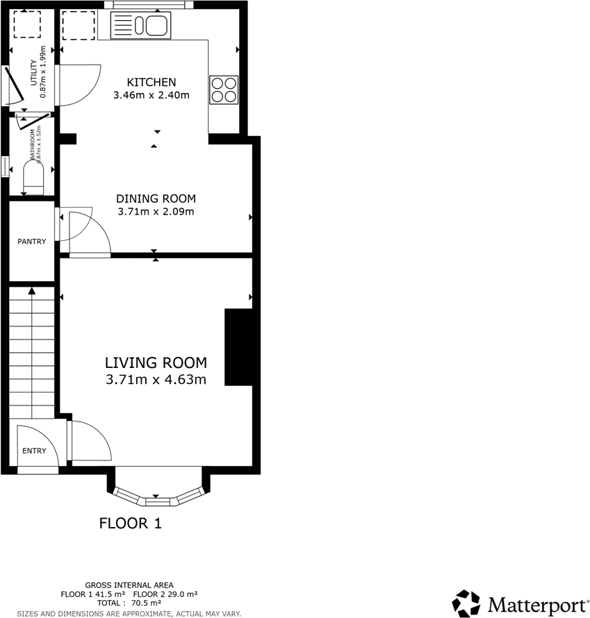
- Two bedrooms with family bathroom and ground-floor WC
- Spacious kitchen-diner and separate lounge
- Off-street driveway parking for multiple cars
- Enclosed rear garden with summer house and bar
- Double glazing fitted after 2002; mains gas heating
- Solid brick walls with no cavity insulation (may need work)
- Small plot and compact room sizes typical of era
- Area has high crime rates and high local deprivation
This two-bedroom semi-detached freehold sits on a quiet residential street in Armthorpe, offering practical space for a first home. The ground floor has a lounge, contemporary kitchen-diner, and a handy WC, while the first floor houses two bedrooms and a family bathroom. A driveway provides off-street parking and the rear garden includes a paved patio and a summer house with a bar — a pleasant private spot for relaxed evenings.
The location is a genuine convenience: local shops, pubs and restaurants are within a five-minute walk, and bus links to the town centre and nearby lakes are an easy 10-minute drive. Heating is mains gas to a boiler and radiators and the windows are double glazed (fitted since 2002), so the house is ready for immediate occupation while offering scope to personalise.
Practical drawbacks are clear and factual. The area records higher-than-average crime and significant local deprivation, which may concern some buyers. The walls are original solid brick with no built-in insulation, so owners should factor potential insulation or energy-efficiency work into future budgets. The plot is small and the property is compact — typical of its era — so it suits buyers seeking manageable space rather than large gardens or expansive rooms.
Overall this property will suit a first-time buyer or couple wanting a convenient base in Armthorpe with parking, private outside space and good local amenities. The house has been well used and enjoyed by its current owners and offers a solid, practical home with straightforward opportunity to improve energy performance and personalise interior finishes.
2 bedroom terraced house for sale in Larch Drive, Armthorpe, Doncaster, DN3 — £100,000 • 2 bed • 1 bath • 586 ft²
3 bedroom semi-detached house for sale in Hatfield Lane, Armthorpe, DONCASTER, DN3 — £170,000 • 3 bed • 1 bath • 811 ft²
2 bedroom semi-detached house for sale in Kingsley Crescent, Doncaster, DN3 — £180,000 • 2 bed • 1 bath • 1008 ft²
3 bedroom semi-detached house for sale in Hazel Grove, Armthorpe, DN3 — £159,995 • 3 bed • 1 bath • 786 ft²
3 bedroom terraced house for sale in Almond Avenue, Armthorpe, Doncaster, DN3 — £120,000 • 3 bed • 1 bath • 915 ft²
3 bedroom semi-detached house for sale in Laburnum Drive, Armthorpe, Doncaster, DN3 — £160,000 • 3 bed • 1 bath • 1400 ft²






































































