Ready-made family home with garage and garden in sought-after Werrington.
Extended modern kitchen with utility and downstairs WC
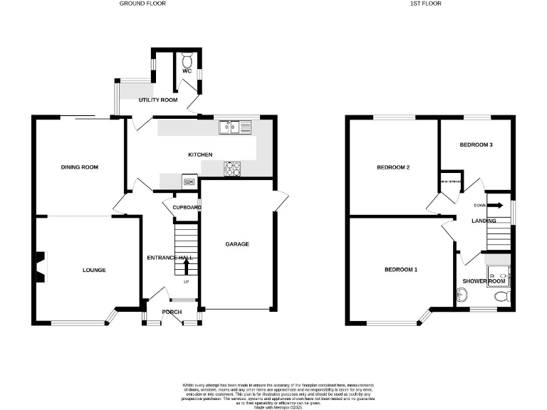
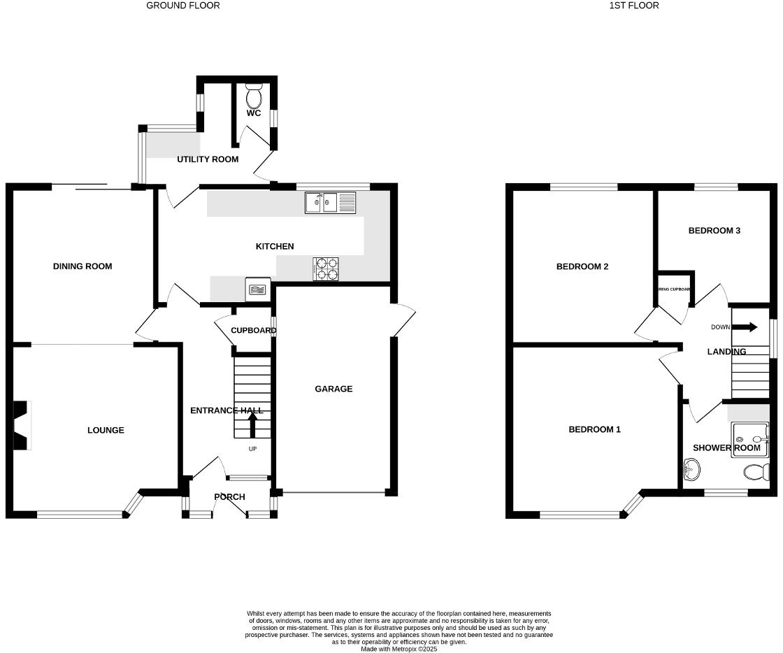
This three-bedroom semi-detached house in Hewitt Crescent is a practical family home in a sought-after Werrington location. The extended modern kitchen, useful utility room and downstairs WC give everyday convenience, while the lounge opening to the dining area creates a comfortable, sociable ground-floor living space.
Outside there is ample off-road parking and an integral garage with electric door, plus an enclosed laid-to-lawn rear garden and patio — low-maintenance and child-friendly. The property is offered freehold and with no onward chain, so it is ready for a quick move.
Internally the house is well proportioned but shows some dated decorative finishes, particularly in the living room and bedrooms — this presents straightforward scope to refresh and add value. The energy performance is EPC rated D; this is typical for post‑war builds but worth noting for running costs and potential improvement works.
Local amenities, good primary schools (including an outstanding option nearby) and reliable transport links make this a practical choice for growing families wanting space and convenience in a quiet residential area.
3 bedroom semi-detached house for sale in Moorland Avenue, Werrington, Stoke-on-Trent, ST9 — £220,000 • 3 bed • 1 bath • 905 ft²
3 bedroom semi-detached house for sale in Cellarhead Road, Werrington, ST9 — £285,000 • 3 bed • 1 bath • 786 ft²
3 bedroom semi-detached house for sale in Whitmore Avenue, Werrington, Stoke-on-Trent, ST9 — £190,000 • 3 bed • 1 bath • 513 ft²
3 bedroom semi-detached house for sale in Ash Bank Road, Werrington, Stoke On Trent, ST2 9DR, ST2 — £210,000 • 3 bed • 2 bath
3 bedroom semi-detached house for sale in Ash Bank Road, Ash Bank, ST2 — £325,000 • 3 bed • 2 bath • 1249 ft²
3 bedroom semi-detached house for sale in Uplands Drive, Werrington, Stoke-on-Trent, ST9 — £270,000 • 3 bed • 1 bath • 1009 ft²


































































