Newly renovated two-bedroom home with parking and long lease ideal for first buyers.
Open-plan kitchen/lounge/diner with Velux windows and integrated appliances
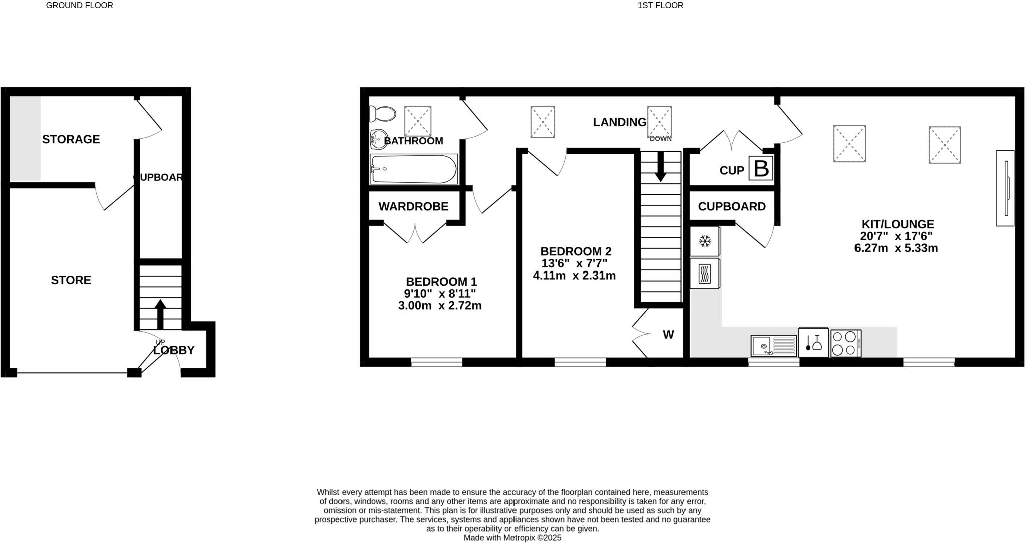
Light-filled and recently renovated, this two-bedroom coach house sits tucked away on a popular development in North Fields. The L-shaped open-plan kitchen/lounge/dining room is the home’s standout feature, with twin Velux windows, a media wall and contemporary log-effect fire. The kitchen is fitted with modern units, marble worktops and integrated Bosch appliances for immediate, low-fuss living.
The property benefits from a very long lease (975 years remaining), low annual service charge and modest ground rent. A former garage has been converted into a generous store with a separate additional store room and parking to the front, giving secure space for bikes, boxes and seasonal items. Double glazing and mains gas central heating with a new boiler provide efficient comfort.
At about 550 sq ft this is a compact home suited to a first-time buyer or couple seeking a low-maintenance base in a quiet, affluent small-town location. Broadband and mobile signals are excellent, and local amenities, green spaces and sports facilities are within easy reach. Nearby schools include primaries and a secondary rated Good by Ofsted (one local school currently Requires Improvement).
Buyers should note the compact overall size and single bathroom layout; storage is good but living space is best for those comfortable with a smaller footprint. The tenure is leasehold (long lease) and the service charge includes building insurance, with the quoted figures provided.
2 bedroom coach house for sale in Roman Way, Shillingstone, DT11 — £225,000 • 2 bed • 1 bath • 990 ft²
2 bedroom detached house for sale in Oakfield Street, Blandford Forum, Dorset, DT11 — £230,000 • 2 bed • 1 bath • 612 ft²
2 bedroom coach house for sale in Summer Oaks, Motcombe, Shaftesbury, SP7 — £250,000 • 2 bed • 2 bath • 808 ft²
2 bedroom terraced house for sale in Mill Street, Fontmell Magna, Shaftesbury, SP7 — £300,000 • 2 bed • 1 bath • 816 ft²
2 bedroom mews property for sale in Cobham Road, Blandford Forum, DT11 — £230,000 • 2 bed • 1 bath • 614 ft²
3 bedroom terraced house for sale in Victoria Road, Blandford Forum, Dorset, DT11 — £450,000 • 3 bed • 2 bath • 1516 ft²






















































