Chain-free period apartment close to station, hospital and university.
Top-floor two double bedrooms with good natural light
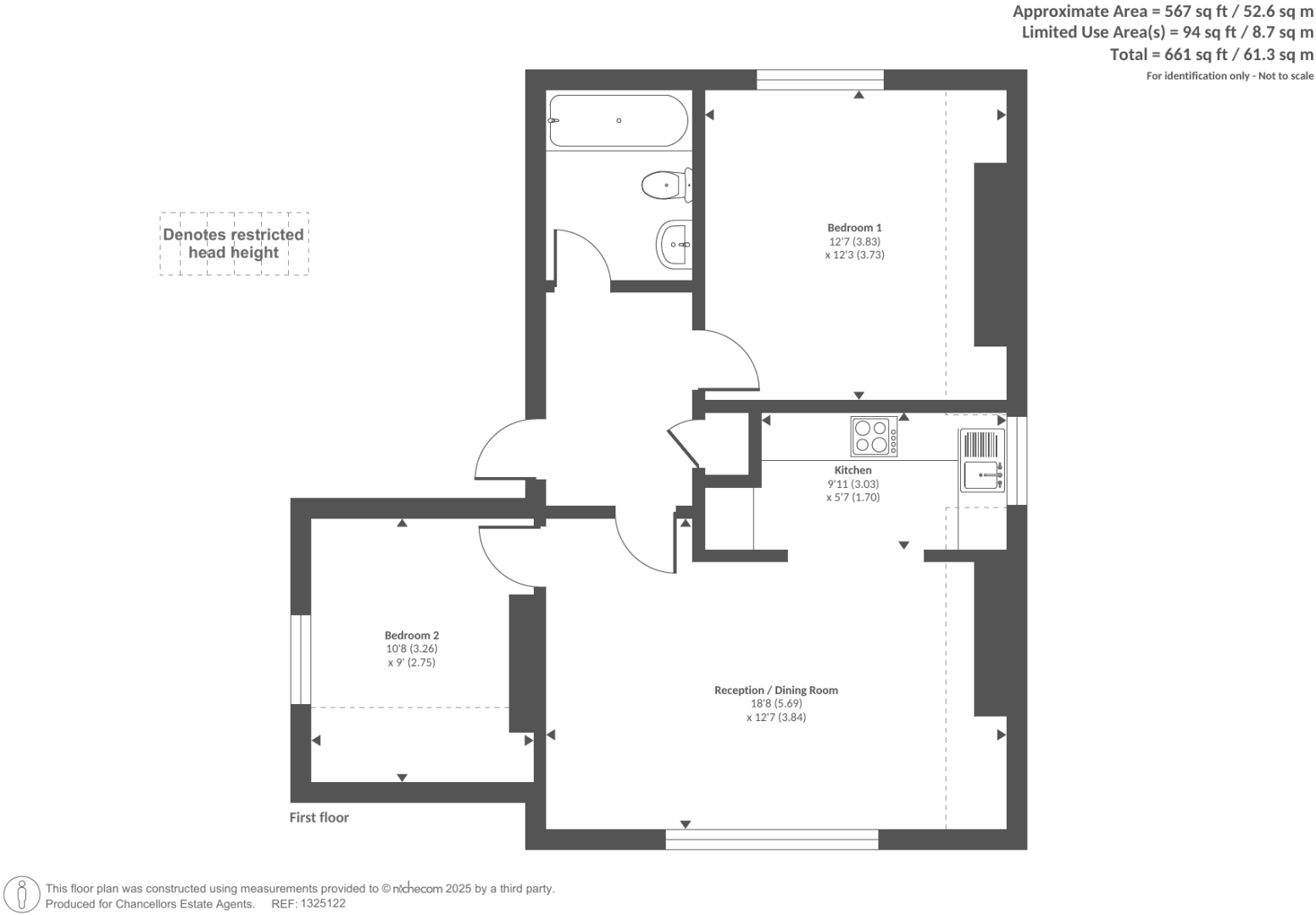
A bright top-floor two-bedroom apartment in the University/Hospital area, ideal for first-time buyers or buy-to-let investors seeking central Reading convenience. The open sitting/dining room and picture window bring good natural light, while a modern kitchen with integrated appliances and a contemporary bathroom offer move-in readiness.
Set within a Grade II listed period conversion, the property combines character features with modern finishes. It benefits from gas central heating, double glazing, allocated off-street parking and a small garden — rare for a central flat. The apartment is chain-free and offered with 110 years remaining on the lease, providing long-term security for mortgage or investment plans.
Buyers should note the listed status may restrict external and internal alterations and could complicate refurbishment or extension plans. The building’s solid brick construction likely lacks cavity insulation, so additional insulation work may be needed to improve energy efficiency. Overall size is average at 652 sq ft, suitable for comfortable living but not expansive layouts.
Positioned walking distance to Reading Station, the town centre, Royal Berkshire Hospital and the university, the flat suits commuters, professionals and students wanting easy access to transport, shops and amenities. With low local crime, fast broadband and nearby high-performing schools, it offers practical urban living with clear potential for rental income or a first home.
2 bedroom apartment for sale in Flat 7, Townside Court, 6 Crown Place, Reading, Berkshire, RG1 — £240,000 • 2 bed • 2 bath • 707 ft²
2 bedroom apartment for sale in London Road, Reading, Berkshire, RG1 — £270,000 • 2 bed • 1 bath • 453 ft²
2 bedroom apartment for sale in Kings Road, Reading, RG1 — £220,000 • 2 bed • 1 bath • 657 ft²
2 bedroom flat for sale in Reading, Berkshire, RG1 — £230,000 • 2 bed • 1 bath • 570 ft²
2 bedroom apartment for sale in Kenavon Drive, Reading, Berkshire, RG1 — £250,000 • 2 bed • 2 bath • 731 ft²
2 bedroom flat for sale in Reading, Berkshire, RG1 — £340,000 • 2 bed • 1 bath • 785 ft²


















































































































