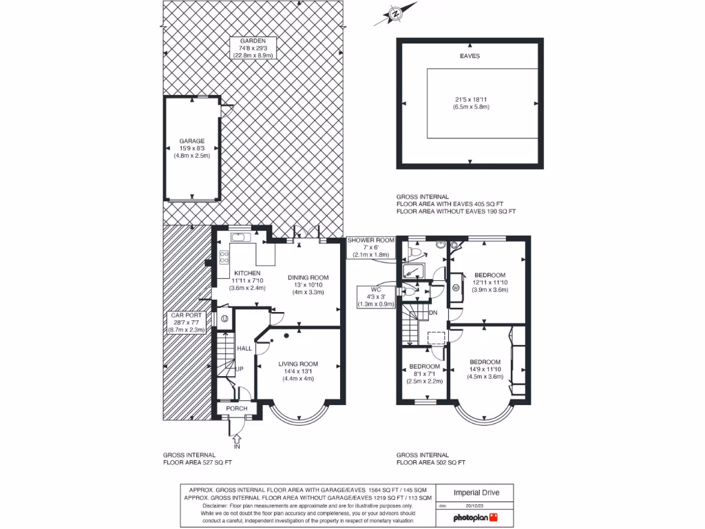
**Standout Features:**
- Three-bedroom semi-detached house
- Chain-free sale
- Modern finish with spacious open-plan living
- Approved planning permissions for two-story side extension, rear extension, and conversion into flats
- Located in desirable catchment area with outstanding schools
- Close to both Piccadilly and Metropolitan line stations
- Large garden and garage
**Summary:**
Discover this charming three-bedroom semi-detached house on Imperial Drive, Harrow, offering a blend of contemporary design and unmatched potential. With a modern interior flooded with natural light, the spacious open-plan layout boasts a welcoming reception and a contemporary kitchen-diner, perfect for family gatherings. The upstairs features three generous bedrooms complemented by a stylish family bathroom. This property not only comes with the convenience of being chain-free but also offers exciting expansion opportunities, with approved planning permissions for a two-story side extension and rear dormer conversion.
Set in an affluent neighborhood, you'll benefit from proximity to outstanding schools and excellent transport links, making it an ideal choice for families and investors alike. The generous garden provides a perfect outdoor sanctuary. Don’t miss out on this unique opportunity to create your dream home or an excellent investment—this property is sure to attract interest and won’t be available for long!
5 bedroom house for sale in Imperial Drive, Harrow, HA2 — £825,000 • 5 bed • 3 bath • 1899 ft²
3 bedroom semi-detached house for sale in Imperial Drive, Harrow, HA2 — £675,000 • 3 bed • 1 bath • 1295 ft²
3 bedroom semi-detached house for sale in Norwood Drive, Harrow, HA2 — £725,000 • 3 bed • 1 bath • 1469 ft²
3 bedroom semi-detached house for sale in Harrow, Middlesex, HA2 — £650,000 • 3 bed • 1 bath • 1383 ft²
3 bedroom semi-detached house for sale in Headstone Gardens, Harrow, HA2 — £630,000 • 3 bed • 1 bath • 1298 ft²
4 bedroom semi-detached house for sale in Imperial Drive, North Harrow, HA2 — £660,000 • 4 bed • 1 bath • 1290 ft²






















































