Large period home with garden and studio near good schools and transport.
Two double bedrooms plus loft conversion studio space
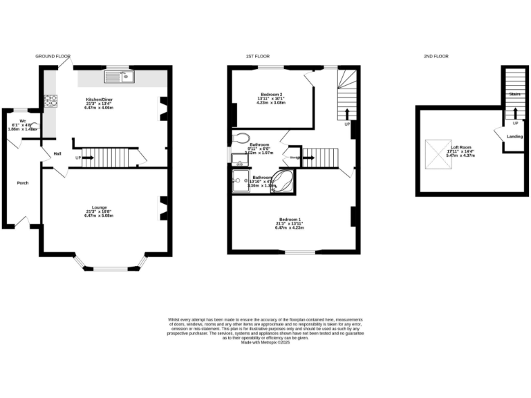
This semi-detached cottage sits in Hambrook, offering generous living across approximately 1,467 sqft. The house combines traditional character — flagstone flooring, sash windows and chimney breasts — with practical additions including a loft conversion and a separate studio outbuilding. Both reception rooms have log burners for period charm and efficient zoned heating.
The layout suits families craving space and flexibility: two double bedrooms, a four-piece family bathroom, and an upstairs loft room accessed by a newly installed staircase. The kitchen/diner opens to a private rear garden with mature trees, patio, summer house and useful external storage including two sheds and a wood store.
Location is a clear strength — Hambrook’s village amenities, good primary and secondary schools, and easy access to the A4174 and Bristol city centre (around 5.7 miles) make this cottage practical for commuters and families. The front lawn and studio provide scope for home working or creative use.
Buyers should note some material facts: the property has an EPC rating of D, slow broadband speeds, and a medium flood risk. Parking is on-street only. These are practical considerations for modern living and may require investment to improve energy performance and connectivity.
3 bedroom cottage for sale in Bristol Road, Hambrook, Bristol, BS16 — £600,000 • 3 bed • 2 bath • 1276 ft²
2 bedroom cottage for sale in The Gully, Winterbourne, Bristol, BS36 — £300,000 • 2 bed • 1 bath • 891 ft²
2 bedroom semi-detached house for sale in Castle Farm Road, Hanham, Bristol, BS15 3NJ, BS15 — £420,000 • 2 bed • 1 bath • 1347 ft²
4 bedroom detached house for sale in Jeffries Hill Bottom, Hanham, BRISTOL, BS15 3BQ, BS15 — £549,500 • 4 bed • 1 bath • 1202 ft²
3 bedroom semi-detached house for sale in The Causeway, Coalpit Heath, Bristol, Gloucestershire, BS36 — £400,000 • 3 bed • 1 bath • 828 ft²
3 bedroom character property for sale in Wraxall Road, Bristol, BS30 — £375,000 • 3 bed • 2 bath • 830 ft²


















































































