Affordable starter home with strong transport links and refurbishment potential.
End-terrace villa on a generous plot with sizable front, side and rear gardens
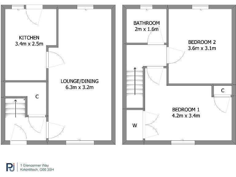
This two-bedroom end-terrace villa sits on a notably generous plot close to Kirkintilloch town centre, local shops, schools and transport links. The ground floor is open-plan with a bright lounge and dining area, while the kitchen opens directly to the rear garden. Upstairs are two double bedrooms and a fully tiled shower room. The property is freehold and offers excellent mobile signal and fast broadband.
The house presents good scope for modernisation and value-adding improvement. Interiors show dated decor and some exterior maintenance is evident, but the layout, plot size and open-plan living create straightforward potential for refurbishment to contemporary standards. The Energy Performance Rating is D.
Practical positives include a large storage cupboard off the hall, generous front, side and rear gardens, and easy road access to Glasgow and the central motorway network. Note the wider area is classified as very deprived and in a challenged transitional zone, which may affect local services and resale dynamics. Flood risk is none, and the property totals approximately 616 sqft.
Overall, this property will suit a first-time buyer or investor looking for an affordable entry into the area with clear scope to enhance value through sensible updating and garden use.
2 bedroom semi-detached house for sale in 20 Crawriggs Avenue, Kirkintilloch, Glasgow, G66 — £170,000 • 2 bed • 1 bath • 548 ft²
2 bedroom semi-detached house for sale in 40 Abbotsford Drive, Kirkintilloch, Glasgow, G66 — £105,000 • 2 bed • 1 bath • 563 ft²
2 bedroom end of terrace house for sale in 3 Waterside Cottages, Bankhead Road, Kirkintilloch, G66 — £150,000 • 2 bed • 2 bath • 746 ft²
2 bedroom terraced house for sale in Doon Road, Kirkintilloch, Glasgow, G66 — £154,995 • 2 bed • 1 bath • 873 ft²
2 bedroom terraced house for sale in Crosshill Street, Glasgow, G66 — £140,000 • 2 bed • 1 bath • 645 ft²
3 bedroom terraced house for sale in 29 Alloway Drive, Kirkintilloch, Glasgow, G66 — £160,000 • 3 bed • 2 bath • 618 ft²


























































































