Charming three-bed terrace with large garden, parking and stunning farmland views..
Three bedrooms with high ceilings and period fireplace
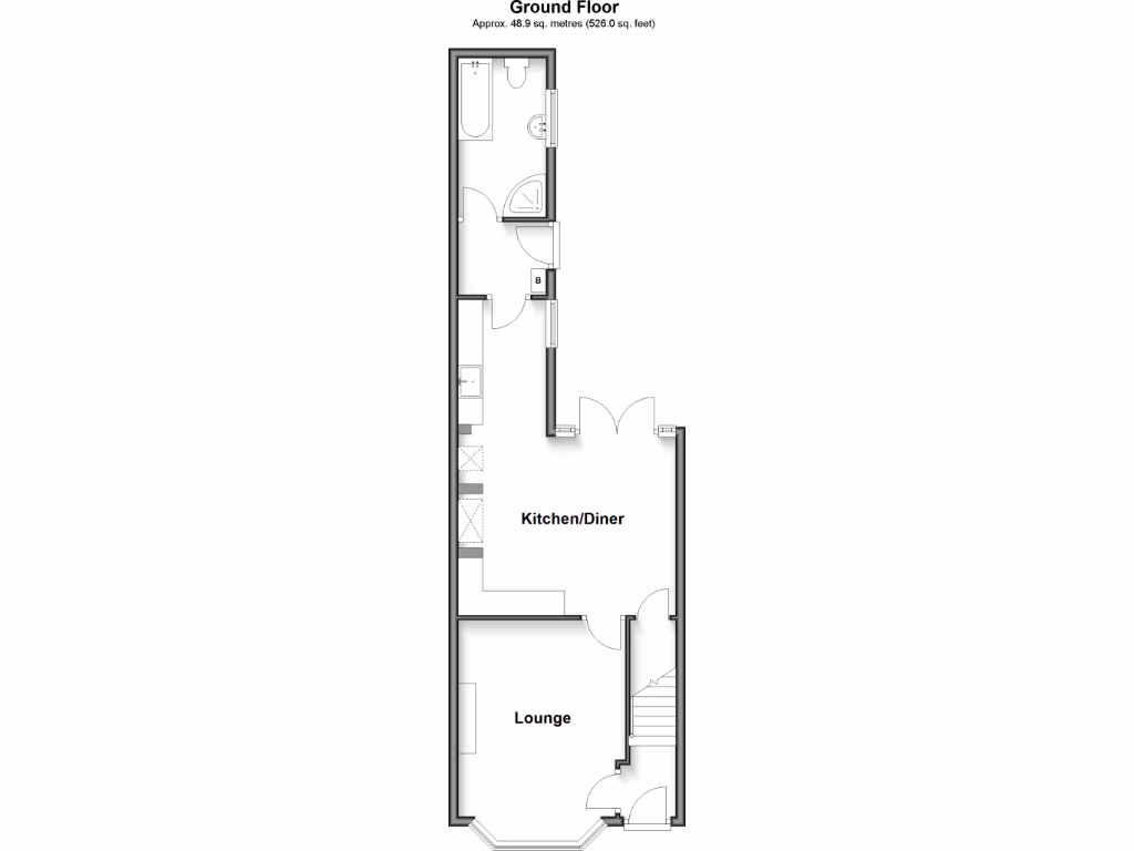
Country-style kitchen/diner with range cooker and utility room
Large mature rear garden with farmland views
Off-street parking for up to three cars
Double glazing fitted post-2002; mains gas central heating
Solid brick construction, likely no cavity insulation (upgrade recommended)
Very slow broadband — may limit home working
Single family bathroom; some modernisation likely needed
Set in a peaceful village setting, this three-bedroom mid-terrace offers period charm, high ceilings and a feature fireplace. The country-style kitchen/diner with range cooker and adjoining utility is the practical heart of the home, opening to a large mature garden with far-reaching farmland views — ideal for summer entertaining and outdoor space for families.
Practical strengths include off-street parking for up to three cars, double glazing installed since 2002, mains gas central heating and an affordable council tax band. The layout is traditional and straightforward; room sizes suit a family or professionals wanting countryside living with easy parking and sizeable outside space.
Notable considerations: the house is solid-brick and assumed to have no cavity insulation, so upgrading insulation could be needed to improve energy efficiency. Broadband speeds in the area are very slow, which may affect home working; there is a single family bathroom. The property dates from c.1900–1929, so some updating and checks on services, wiring and insulation are recommended.
This freehold cottage-style terrace suits buyers seeking character with scope to improve energy performance and connectivity. It will appeal to families and countryside buyers who prioritise garden space, parking and village tranquillity over immediate modernisation.
 3 bedroom terraced house for sale in Hill Crescent, Aylesham, Canterbury, Kent, CT3 — £260,000 • 3 bed • 1 bath • 664 ft²
 3 bedroom terraced house for sale in Hill Crescent, Aylesham, Canterbury, Kent, CT3 — £260,000 • 3 bed • 1 bath • 664 ft² 3 bedroom semi-detached house for sale in Ackholt Road, Aylesham, Canterbury, Kent, CT3 — £325,000 • 3 bed • 2 bath • 945 ft²
 3 bedroom semi-detached house for sale in Ackholt Road, Aylesham, Canterbury, Kent, CT3 — £325,000 • 3 bed • 2 bath • 945 ft² 3 bedroom semi-detached house for sale in Adelaide Road, Eythorne, Dover, Kent, CT15 — £270,000 • 3 bed • 1 bath • 765 ft²
 3 bedroom semi-detached house for sale in Adelaide Road, Eythorne, Dover, Kent, CT15 — £270,000 • 3 bed • 1 bath • 765 ft² 3 bedroom detached house for sale in Collier Walk, Hersden, Canterbury, Kent, CT3 — £525,000 • 3 bed • 3 bath • 1400 ft²
 3 bedroom detached house for sale in Collier Walk, Hersden, Canterbury, Kent, CT3 — £525,000 • 3 bed • 3 bath • 1400 ft² 3 bedroom terraced house for sale in Plumstone Road, Birchington, CT7 — £400,000 • 3 bed • 2 bath • 917 ft²
 3 bedroom terraced house for sale in Plumstone Road, Birchington, CT7 — £400,000 • 3 bed • 2 bath • 917 ft² 3 bedroom detached house for sale in Ashford Road, Canterbury, Kent, CT1 — £475,000 • 3 bed • 1 bath • 883 ft²
 3 bedroom detached house for sale in Ashford Road, Canterbury, Kent, CT1 — £475,000 • 3 bed • 1 bath • 883 ft²


























































