Light-filled two-bedroom flat with balcony and private garden near Clapham Junction.
Raised-ground Victorian conversion with character features
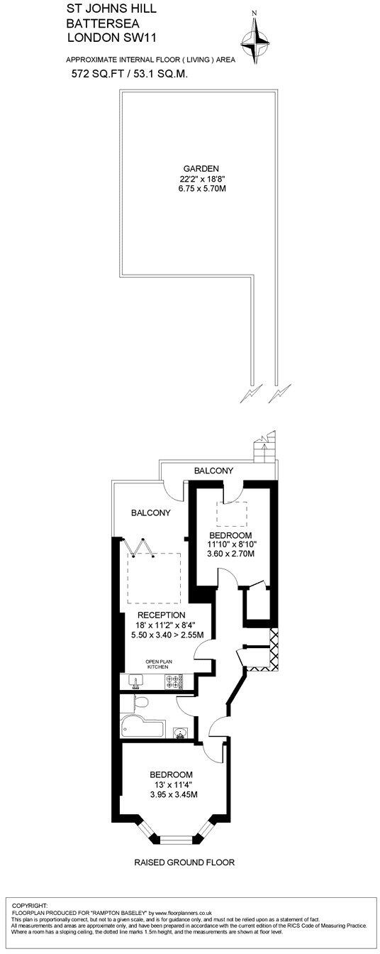
Set within a handsome Victorian conversion on St John’s Hill, this raised-ground two-bedroom flat offers compact, light-filled living with private outdoor space — a rare find so close to Clapham Junction. The open-plan kitchen/reception opens onto a decked balcony and steps down to a landscaped garden, giving genuine indoor‑outdoor living for a city property of this size. Herringbone parquet floors, floor-to-ceiling glazed doors and rooflights maximise natural light throughout.
The layout works well for a first-time buyer or buy-to-let investor: a generous front bedroom with a large bay window and high ceilings, a second bedroom with built-in storage and direct balcony access, plus a well-appointed bathroom. The kitchen has integrated appliances and granite-style worksurfaces, and a shed provides useful garden storage. Tenure is leasehold with c.107 years remaining.
Buyers should note a few practical points. The apartment is modest in overall size (c.572 sq ft) typical of inner‑city flats, and the building’s solid brick construction likely lacks cavity wall insulation. Double glazing is present but installation date is unknown. Council tax is above average for the area and ground rent is £300. Crime levels are above average in the local area — worth factoring into rental projections or long‑term plans.
Located moments from cafés, independent shops and transport at Clapham Junction, the flat benefits from excellent mobile signal and good local amenities. Broadband speeds are average. This property suits buyers seeking a compact, characterful Battersea home with outdoor space, or investors targeting consistent demand in a highly qualified, inner‑city neighbourhood.
1 bedroom flat for sale in Louvaine Road, London, SW11 — £500,000 • 1 bed • 1 bath • 450 ft²
2 bedroom apartment for sale in Harbut Road, SW11 — £575,000 • 2 bed • 1 bath • 570 ft²
2 bedroom apartment for sale in Auckland Road, SW11 — £925,000 • 2 bed • 2 bath • 894 ft²
1 bedroom flat for sale in Cologne Road, SW11 — £430,000 • 1 bed • 1 bath • 415 ft²
2 bedroom flat for sale in St. John's Hill, Battersea, London, SW11 — £750,000 • 2 bed • 2 bath • 932 ft²
2 bedroom apartment for sale in St. John's Hill, SW11 — £585,000 • 2 bed • 1 bath • 649 ft²


















































