Vacant licensed HMO with scope to add rooms — ideal for value‑add investors.
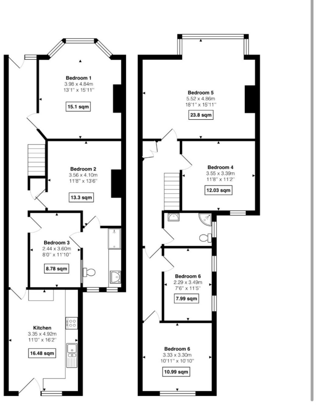
Licensed five‑bed HMO sold vacant with immediate letting potential
Scope to increase number of rooms (subject to planning and licensing)
Victorian period features: bay windows, high ceilings, decorative woodwork
EPC C; gas central heating plus some electric heating present
Requires updating and renovation throughout; some works needed
Solid brick walls likely uninsulated; insulation upgrade recommended
Small south‑facing rear garden; overall plot size is small
Local area very deprived with very high crime — factor for management
This licensed five‑bed HMO on Southchurch Road is offered with vacant possession and immediate income potential for an investor prepared to update. The Victorian mid‑terrace retains period features—bay windows, high ceilings and decorative woodwork—that add character and letting appeal. EPC rated C and gas central heating provide reasonable running costs; some electric heating is also present.
The property is configured as a five‑room HMO across two floors with a kitchen/diner and shower room on the ground floor and additional rooms to the first floor. There is scope to increase accommodation (subject to planning and licensing) to enhance rental yield. A south‑facing rear garden and proximity to the seafront and city centre are practical extras for tenants.
Notable drawbacks are factual: the house requires updating and some renovation work, the plot is small, and the building appears to have solid brick walls with no assumed cavity insulation. The surrounding area is very deprived with very high crime levels—important for underwriting lettings and insurance—so buyer due diligence on management, safety measures and local demand is essential.
This is a straightforward opportunity for a hands‑on investor or developer who can carry out upgrade works, improve insulation and fire/safety measures, and potentially reconfigure rooms (with consent) to increase income. Sold freehold and vacant, it offers a clear canvas to add value.
6 bedroom terraced house for sale in Glenmore Street, Southend-On-Sea, HMO Investment Opportunity - Spacious 6-Bedroom Terraced Property in Prime Southend Lo, SS2 — £420,000 • 6 bed • 1 bath • 875 ft²
5 bedroom terraced house for sale in Queens Road, Southend-on-Sea, SS1 — £450,000 • 5 bed • 5 bath • 1327 ft²
Commercial property for sale in Stanley Road, Southend-on-Sea, SS1 — £350,000 • 1 bed • 1 bath • 1420 ft²
Commercial property for sale in 1 Stanley Road, Southend on Sea, Essex, SS1 2HB, SS1 — £275,000 • 4 bed • 2 bath • 1421 ft²
5 bedroom terraced house for sale in Warrior Square, Southend-on-Sea, Essex, SS1 — £365,000 • 5 bed • 1 bath • 1515 ft²
5 bedroom house of multiple occupation for sale in Milton Street, Southend-On-Sea, Essex, SS2 — £330,000 • 5 bed • 2 bath • 1077 ft²


































