**Standout Features:**
- Spacious 2-bedroom duplex flat with stunning water views
- Secure gated access with a central courtyard
- Open-plan design with floor-to-ceiling windows
- Two balconies offering panoramic vistas of the Firth of Clyde
- Allocated parking space in a secure residents' car park
- Good internal order with double glazing and gas central heating
- Excellent mobile signal and average broadband speeds
**Potential Concerns:**
- Located in an area classified as very deprived
- Council tax rated as expensive
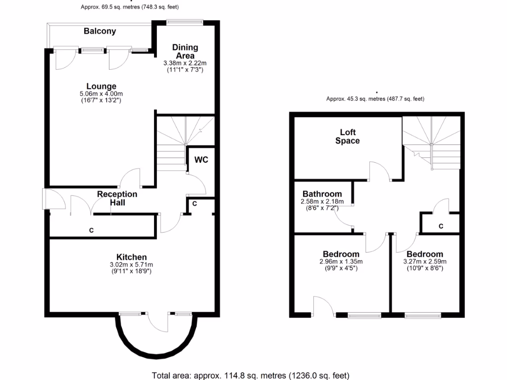
Discover the charm of coastal living in this top-floor duplex apartment at 16GH The Moorings, where modern design meets breathtaking views. Bathed in natural light, the spacious lounge features solid oak flooring and access to an external balcony, perfect for relaxing and enjoying the scenery of the ferry terminal and the beautiful Firth of Clyde. The semi-open-plan dining area flows into a well-equipped kitchen, ideal for entertaining.
Upstairs, find two generous double bedrooms along with a stylish bathroom, plus ample loft storage for added convenience. Nestled in a vibrant community with an array of local amenities—from shops to cafes—not to mention the easy access to transportation, this property is perfect for first-time buyers or investors looking to tap into rental potential. Despite the area's economic challenges and elevated council tax, the unique features and prime location provide a foundation for a comfortable, carefree lifestyle. Don't miss your chance to secure this exceptional asset—experience coastal charm and the promise of breathtaking views!
2 bedroom flat for sale in Flat H, The Moorings, 16 Main Street, Largs, KA30 8AB, KA30 — £170,000 • 2 bed • 2 bath • 1076 ft²
2 bedroom flat for sale in 4E Millennium Court, Largs, KA30 8SZ, KA30 — £170,000 • 2 bed • 2 bath • 926 ft²
2 bedroom flat for sale in Bath Street, Largs, North Ayrshire, KA30 — £110,000 • 2 bed • 1 bath • 789 ft²
2 bedroom flat for sale in Curlinghall, Largs, North Ayrshire, KA30 — £185,000 • 2 bed • 2 bath • 592 ft²
2 bedroom flat for sale in Chaseley Gardens, Skelmorlie, North Ayrshire, PA17 — £150,000 • 2 bed • 2 bath • 808 ft²
2 bedroom flat for sale in Holmwood, Largs, North Ayrshire, KA30 — £180,000 • 2 bed • 1 bath • 751 ft²






















































