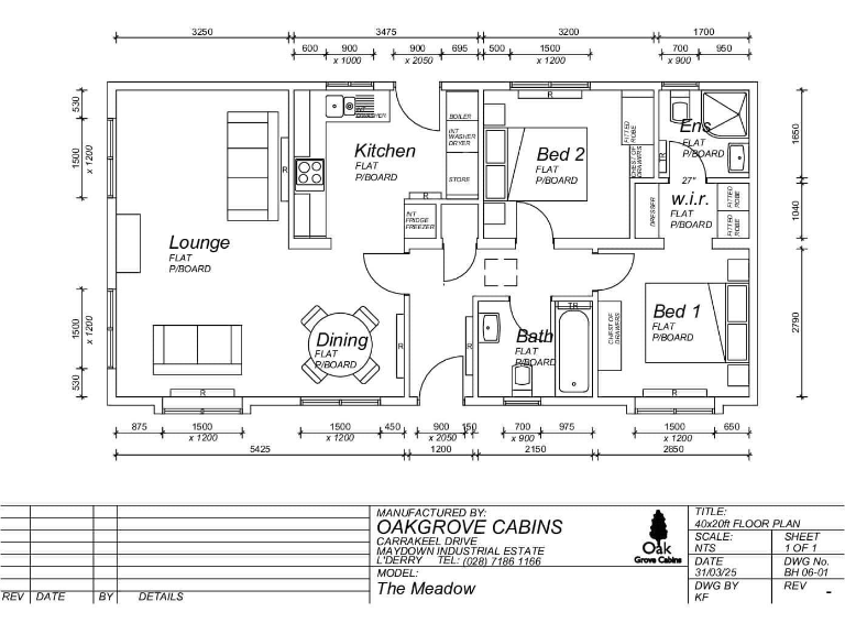
**Standout Features:**
- Brand new, modern park home (40'x20')
- Fully furnished with stylish interiors
- Two double bedrooms, two bathrooms (including en suite)
- Pet-friendly community living exclusively for over 50s
- Established residential park close to local amenities
- Short walk to Hurn Forest and Avon Heath Country Park
- Off-street parking available
- Simple access to local transport, including a bi-weekly free bus service
- Chain-free sale
**Potential Concerns:**
- Ground rent and service charges total £6,000 annually (subject to change)
- Broadband speeds are very slow
Discover your new sanctuary in this stunning brand new park home nestled within a charming residential community exclusively designed for the over 50s. This modern two-bedroom property boasts tasteful furnishings and practical layout, featuring a bright kitchen with integrated appliances, spacious lounge, and two well-proportioned bedrooms—complete with an en suite for the master suite.
Enjoy the freedom of pet-friendly living amidst serene woodlands just a short stroll from beautiful parks and local conveniences in the hamlet-esque setting of BH24. Although the property has a service charge and ground rent that totals £6,000 annually, its affordable council tax band A ensures your expenses remain manageable. With quick access to important amenities, including shops and doctors’ surgeries within a few miles, this home offers both comfort and convenience.
Offering the perfect blend of a peaceful retreat and easy lifestyle, this property presents a fantastic opportunity to secure a brand-new home in an affluent area. Act quickly, as this gem won't last long on the market—envision yourself in this delightful community today!
2 bedroom park home for sale in Ringwood, Hampshire, BH24 — £249,950 • 2 bed • 2 bath • 800 ft²
2 bedroom park home for sale in St Leonards, Dorset, BH24 — £195,000 • 2 bed • 1 bath • 560 ft²
2 bedroom park home for sale in Just arrived and ready to view. , BH24 — £254,995 • 2 bed • 2 bath • 800 ft²
2 bedroom park home for sale in Ferndown, Dorset, BH22 — £238,000 • 2 bed • 2 bath • 800 ft²
2 bedroom park home for sale in The Avenue, Oaktree Park, St Leonards, Ringwood, BH24 — £249,995 • 2 bed • 2 bath • 800 ft²
2 bedroom park home for sale in Wimborne, Dorset, BH21 — £200,000 • 2 bed • 2 bath • 640 ft²


































































