SW8 2DU - 3 bed riverside tower apartment in St George Wharf, SW8 2DU

View on Property Piper

3 bedroom flat for sale in St George Wharf, Nine Elms, London, SW8

Summary - Apartment 177 The Tower, 1 St George Wharf, London SW8 2DU

3 bed 2 bath Flat

Spacious contemporary flat with premium residents' facilities and river views.
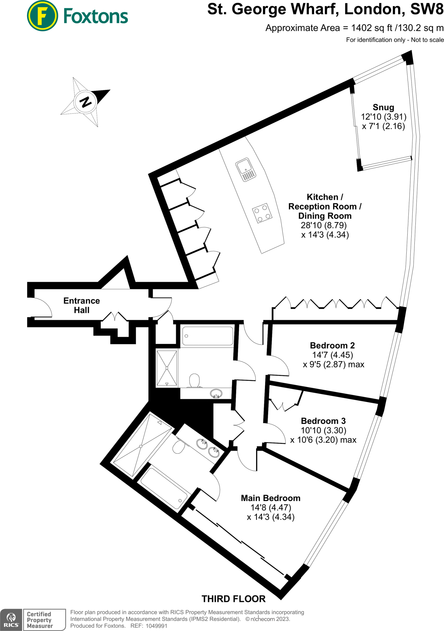
Approx. 1,402 sq ft three-bedroom, two-bathroom apartment
This large three-bedroom apartment in The Tower at St George Wharf offers elevated riverside living with expansive Thames views and generous internal space (approx. 1,402 sq ft). The open-plan living area, high ceilings and balcony access create a bright, contemporary feel suited to professional families or buyers seeking a prestigious London address.

Residents benefit from extensive on-site amenities including a pool, gym, spa, cinema room, conference facilities and communal catering kitchen. The residence is well placed for public transport, with Vauxhall mainline and Underground connections nearby and frequent river and bus services.

Important practical points: the property is leasehold with a very high annual service charge (£25,572) and substantial ground rent (£700). Heating and hot water operate via a community mains gas scheme; the building was constructed c.1996–2002 with double glazing and system-built insulated walls.

The immediate neighbourhood is inner-city and cosmopolitan with strong local amenities and several well-regarded schools within reach. Note the area records higher crime levels than average; prospective buyers should factor service charges, tenure and local safety considerations into their decision.

Property Details

Image Descriptions

Floorplan Description

Rooms

Textual Property Features

Target Audience

AI Tags

Detected Visual Features

EPC Details

Nearby Schools

Nearest Bars And Restaurants

,,,,}

Nearest General Shops

,,}

Nearest Grocery shops

,,}

Nearest Supermarkets

,,}

Nearest Religious buildings

,,}

Nearest Medical buildings

,,,}

Nearest Airports

,,}

Nearest Leisure Facilities

,,,,}

Nearest Tourist attractions

,,}

Nearest Train stations

,,,,}

Nearest Bus stations and stops

,,,,}

Nearest Hotels

,,}

Tags

Local Market Stats

AirBnB Data

Similar Properties

Meta

High Res Images

Compatible Images

Low res Images

Thumbnails

Raw Images

High Res Floorplan Images

Compatible Floorplan Images

Low res Floorplan Images

FloorplanImages Thumbnail

Raw Floorplan Images