Large garden and strong transport links — perfect for renovation or investment.
Three well-proportioned bedrooms suitable for family living or rental use
Huge rear garden offering extension or landscaping potential (subject to planning)
Requires renovation throughout—ideal for DIY or refurbishment projects
Chain free sale; freehold tenure
Close walk to Kettering station and local schools and amenities
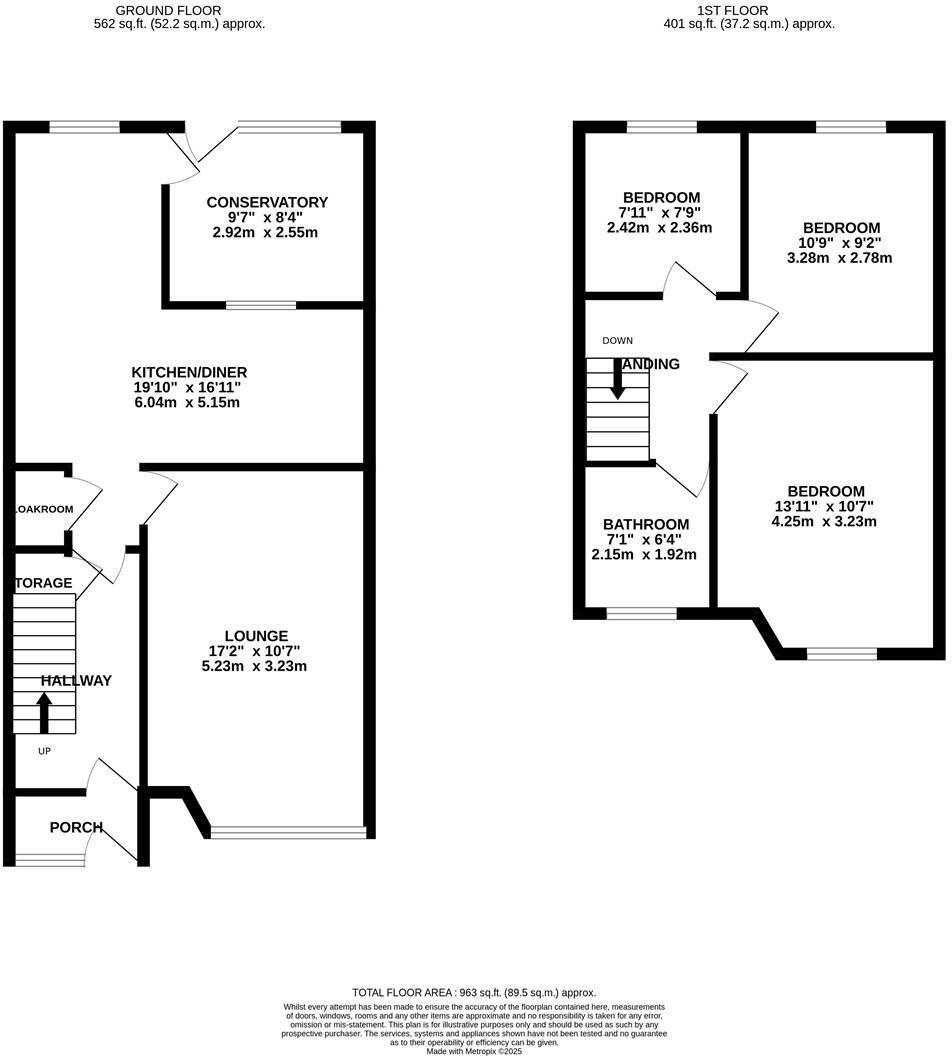
Total internal area approx. 963 sq ft; traditional two-storey layout
Planning needed for extension; no confirmed permissions in place
Area records above-average crime; security improvements advised
This three-bedroom semi-detached house on Belvedere Road offers a straightforward canvas for a family or investor seeking space and long-term value. Well-proportioned rooms across an average-sized footprint give practical living now, while a very large rear garden creates clear scope for landscaping, play space or an extension (subject to planning).
The location is a strong selling point: nearby primary and secondary schools, healthcare and leisure facilities, and an easy walk to Kettering station with direct links to London. Utilities and connectivity are good — freehold tenure, fast broadband and excellent mobile signal support modern family life or rental demand.
The property does require renovation throughout and will suit buyers prepared to carry out improvements. Any extension or major alteration will need planning permission. Crime levels in the area are above average, so consider security upgrades when planning works or refurbishment.
Sold chain-free, this home is well placed for someone wanting to create value through refurbishment or to extend where planning allows. The sale price reflects the need for work and the opportunity for a tailored renovation project.
3 bedroom semi-detached house for sale in Highfield Road, Kettering, NN15 — £240,000 • 3 bed • 1 bath • 1615 ft²
3 bedroom semi-detached house for sale in Cambridge Street, Kettering, Northamptonshire, NN16 — £209,000 • 3 bed • 1 bath • 962 ft²
3 bedroom semi-detached house for sale in NN15 Garfield Street, Kettering, NN15 — £200,000 • 3 bed • 1 bath • 947 ft²
3 bedroom semi-detached house for sale in Bishops Drive, Kettering, NN15 — £200,000 • 3 bed • 1 bath • 592 ft²
3 bedroom semi-detached house for sale in NN15 Grant Close, Kettering, NN15 — £220,000 • 3 bed • 1 bath • 505 ft²
3 bedroom semi-detached house for sale in Hillside Avenue, NN15 — £215,000 • 3 bed • 1 bath • 805 ft²














































