Refurbished ground-floor flat with private outdoor space ideal for first-time buyers.
- Private rear garden with decking and lawn
- Newly fitted kitchen; property recently rewired
- Bay-fronted reception room, bright throughout
- Good-size bedroom with ample storage space
- Double glazing; mains gas boiler and radiators
- Share of freehold for longer-term control
- Solid brick walls likely without cavity insulation
- Local area: higher crime and greater deprivation
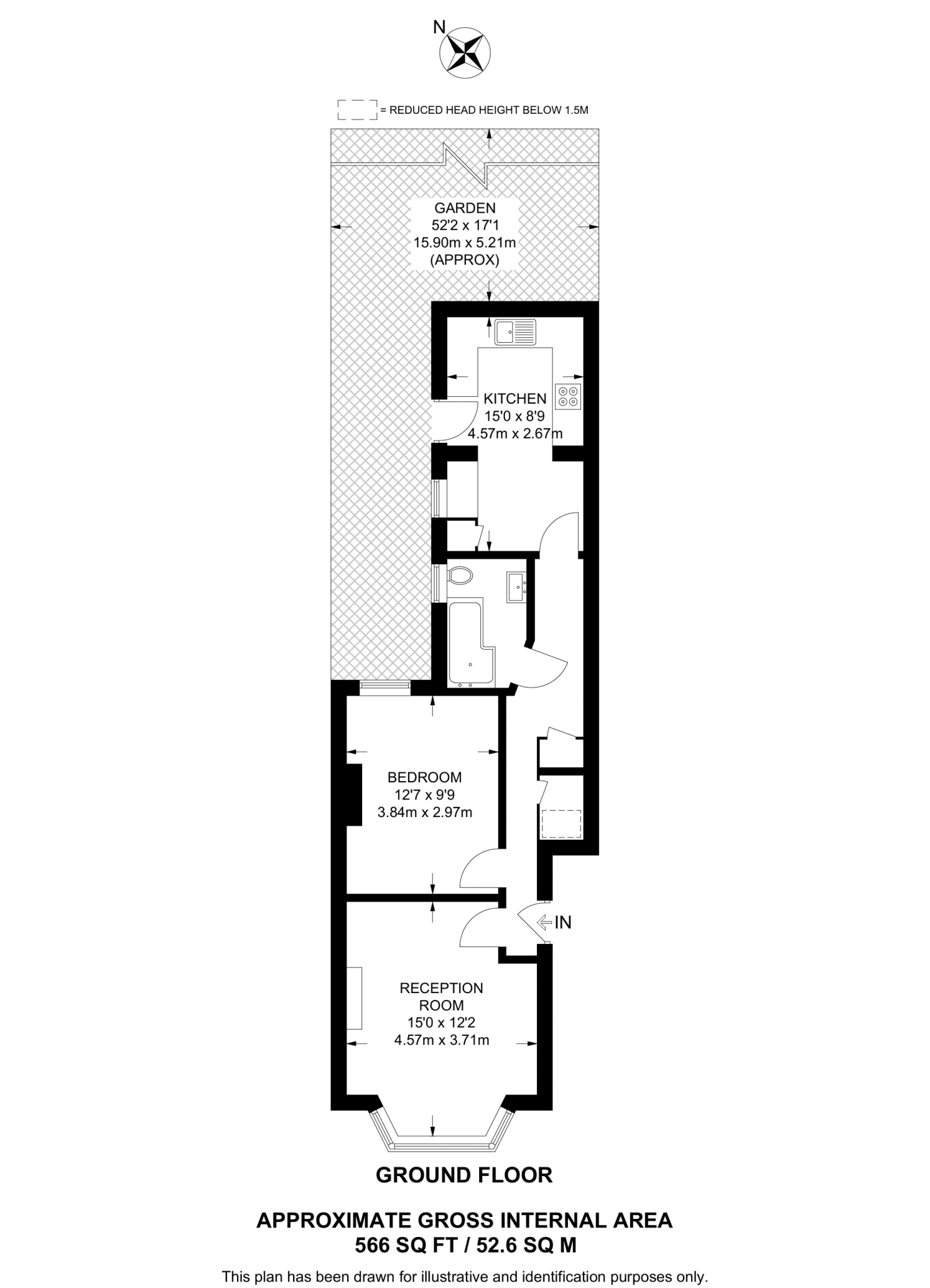
A bright, attractively refurbished one-bedroom ground-floor flat in a Victorian conversion, offering 566 sq ft of comfortable living and a private garden. The bay-front reception and good-sized bedroom give genuine space for first-time buyers looking to move straight in. Recent works include a newly fitted kitchen, rewiring and improved soundproofing, creating a low-hassle home with modern fixtures and neutral décor.
The private rear garden with decking and lawn is a standout for this property — rare for a flat in the area and useful for relaxing, entertaining or child-friendly outdoor space. Double glazing and a mains gas boiler with radiators provide practical heating and insulation improvements, though the original solid brick walls likely lack cavity insulation.
Practical facts to note: the flat is sold as a share of freehold and benefits from an inner-city location close to shops, cafes and Willesden Junction station. However, the local area has higher crime rates and signs of deprivation, which may concern some buyers and affect resale perceptions. The property is not at risk of flooding.
Overall, this newly renovated apartment suits a first-time buyer seeking a ready-to-live-in home with outdoor space and period character, while accepting the trade-offs of an inner-city neighbourhood and solid-wall construction that may need longer-term energy upgrades.
1 bedroom flat for sale in Rucklidge Avenue, Harlesden, London, NW10 — £400,000 • 1 bed • 1 bath • 531 ft²
1 bedroom flat for sale in Newman Close, Willesden Green, London, NW10 — £450,000 • 1 bed • 1 bath • 640 ft²
1 bedroom flat for sale in Gowan Road, Willesden, London, NW10 — £425,000 • 1 bed • 1 bath • 502 ft²
1 bedroom flat for sale in Kilburn Lane, North Kensington, W10 — £500,000 • 1 bed • 1 bath • 581 ft²
1 bedroom flat for sale in Marley Walk, Willesden Green, London, NW2 — £320,000 • 1 bed • 1 bath • 520 ft²
2 bedroom flat for sale in Acton Lane, London, NW10 — £449,000 • 2 bed • 1 bath • 610 ft²


































































































































































































































































