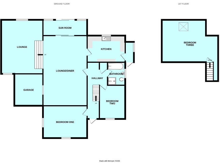
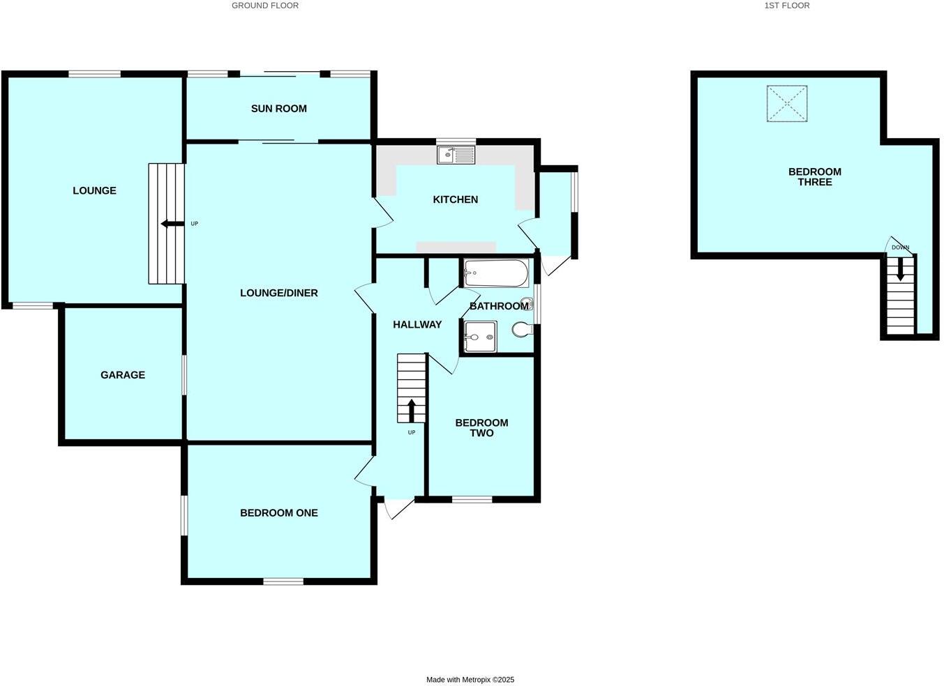
Large plot with garage, conservatory and versatile basement rooms.
- Large, mature south-facing rear garden with pond and small stream
- Extremely spacious receptions: open-plan lounge/diner and sunken sitting room
- Three double bedrooms, third located within the roof space
- Four basement rooms provide storage/utility but limited head height
- Brick-paved driveway and single garage with remote door
- Double-glazing and mains gas central heating (Worcester boiler in basement)
- Single family bathroom only; may need extra facilities for larger households
- Mid-20th-century build; scope for refurbishment to modernise finishes
This substantial detached bungalow sits on a large, mature south-facing plot in Plymstock, offering generous single-storey living with an adaptable layout for family life. The heart of the home is a feature open-plan lounge/dining room with a stone chimney breast, plus a separate sunken sitting room and a conservatory that overlooks the private rear garden. Gas central heating and double glazing are already in place.
Accommodation includes three double bedrooms — two on the ground floor and a third built within the roof space — and a well-sized kitchen with breakfast bar. Practical ancillary space includes four basement rooms (one houses the Worcester boiler) and a side porch/utility area. Outside there is a brick-paved driveway, garage and a mature garden with pond and a small stream, offering scope for gardening and children's play.
Notable considerations: the property has a single bathroom and the basement has very limited head height in places, restricting some uses without modification. The house dates from the mid-20th century and, while well-proportioned, will suit buyers comfortable with some updating and adaptation to modern tastes. Council Tax band E should be noted when budgeting.
4 bedroom detached bungalow for sale in Plymstock, Plymouth, PL9 — £350,000 • 4 bed • 1 bath • 732 ft²
3 bedroom detached bungalow for sale in Plymstock, Plymouth, PL9 — £400,000 • 3 bed • 1 bath • 1088 ft²
4 bedroom detached bungalow for sale in Plymstock, Plymouth, PL9 — £395,000 • 4 bed • 2 bath • 1495 ft²
2 bedroom detached bungalow for sale in Fletcher Way, Plymstock, Plymouth., PL9 — £365,000 • 2 bed • 1 bath • 924 ft²
4 bedroom detached bungalow for sale in Downhorne Park, Plymstock, Plymouth, PL9 — £500,000 • 4 bed • 2 bath • 1172 ft²
2 bedroom detached bungalow for sale in Plymstock, Plymouth, PL9 — £350,000 • 2 bed • 1 bath • 863 ft²






































































































