Chain-free modern one-bedroom with garage and long lease close to transport.
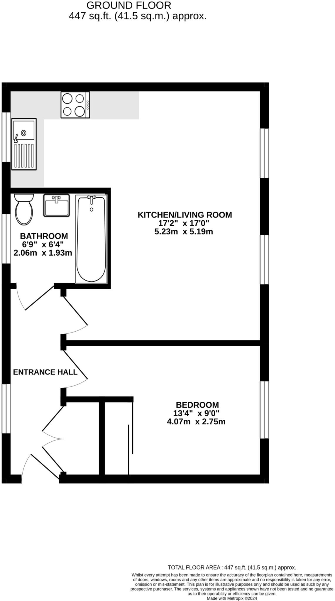
Chain-free ground-floor one-bedroom apartment with private garden and garage parking
981 years remaining on lease — long lease security
Modern fitted kitchen with integrated appliances; open-plan living
Service charge approximately £1,677 per year
Ground rent £350 per year; EPC rating D
Good access to M4/J11, Green Park and Reading town centre
Local area: higher crime and indicators of deprivation
Suitable for buyers wanting low-maintenance city living
Ground-floor one-bedroom apartment in Kennet Island with a modern open-plan layout and private garden. The living space is bright, with a contemporary fitted kitchen and integrated appliances, and a generous bedroom with built-in wardrobe. The property is offered chain-free and benefits from a very long lease (981 years).
Practical running costs and legal charges to note: annual service charge around £1,677 and ground rent £350 per year. The EPC is D and heating is mains gas via boiler and radiators. The development offers garage parking, good links to J11/M4 and Reading town centre, and nearby amenities including shops, cafés and public transport.
Location strengths are counterbalanced by local context: the wider area is classified as an urban cultural mix with higher crime and local deprivation indicators. For a first-time buyer this flat presents a low-entry, low-maintenance option with scope to personalise and benefit from convenient commuting links.
1 bedroom apartment for sale in Drake Way, Reading, Berkshire, RG2 — £190,000 • 1 bed • 1 bath • 463 ft²
1 bedroom flat for sale in 39 Greenham Avenue, Reading, RG2 — £220,000 • 1 bed • 1 bath • 483 ft²
1 bedroom apartment for sale in Drake Way, Reading, Berkshire, RG2 — £215,000 • 1 bed • 1 bath • 473 ft²
1 bedroom apartment for sale in Midgham Way, Reading, Berkshire, RG2 — £210,000 • 1 bed • 1 bath • 482 ft²
1 bedroom apartment for sale in Midgham Way, Reading, Berkshire, RG2 — £205,000 • 1 bed • 1 bath • 463 ft²
1 bedroom apartment for sale in Drake Way, Reading, Berkshire, RG2 — £180,000 • 1 bed • 1 bath • 541 ft²










































































