**Standout Features:**
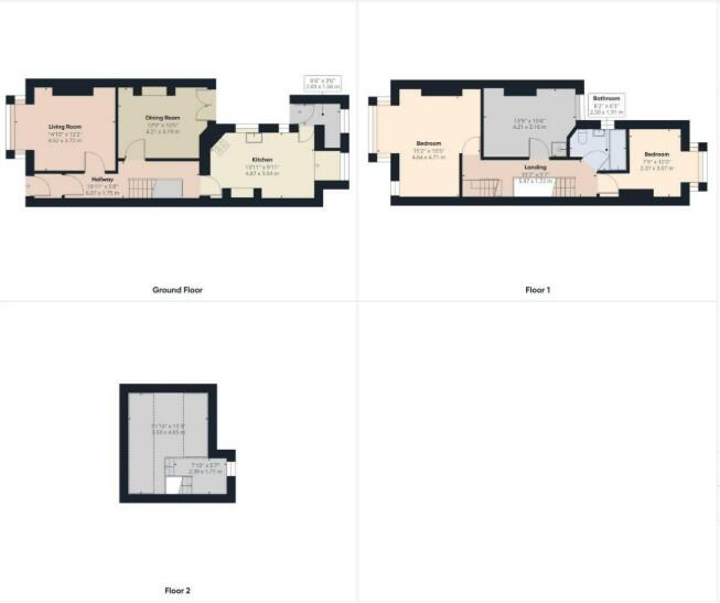
- Three bedrooms and two reception rooms
- Attic/hobbies room with space-saving staircase
- Characterful Edwardian design with Victorian bay window
- Generous room proportions throughout
- Tiered low-maintenance rear garden with Astro turf
- Close proximity to Scarborough's South Bay and amenities
- Freehold property, ideal for families or as a holiday home
**Potential Downsides:**
- Requires modernization and potential updates to insulation
- Located in an area with high crime rates
- May present challenges for maintenance due to age and condition
Experience the charm of this spacious three-bedroom semi-detached home, brimming with Edwardian character and modern potential. The property features two welcoming reception rooms, including a light-filled lounge with a classic Victorian bay window and an inviting feature fireplace, ideal for family gatherings or entertaining guests. An impressive eat-in kitchen with a breakfast bar flows seamlessly into the low-maintenance outdoor space, perfect for enjoying your morning coffee or afternoon relaxation.
The upper floor is home to three generously sized bedrooms, a family bathroom, and a creative attic space that offers endless possibilities as a hobbies room or additional storage. Set in a desirable, tree-lined avenue just off Ramshill Road, this property is conveniently located near an array of amenities and is a quick walk to the scenic South Bay and Spa complex.
This home is perfect for large families seeking ample living space, investors looking for rental opportunities, or anyone envisioning a graceful holiday retreat. While some modernization is needed, this is a rare opportunity to customize a substantial residence in a sought-after area—act quickly and see the potential for yourself!
3 bedroom semi-detached house for sale in Peasholm Gardens, Scarborough, North Yorkshire, YO12 — £285,000 • 3 bed • 1 bath • 1251 ft²
4 bedroom terraced house for sale in Greenfield Road, Scarborough, North Yorkshire, YO11 — £175,000 • 4 bed • 2 bath • 1701 ft²
3 bedroom semi-detached house for sale in Tennyson Avenue, Scarborough, North Yorkshire, YO12 — £170,000 • 3 bed • 1 bath • 1206 ft²
3 bedroom terraced house for sale in Sherwood Street, Scarborough, North Yorkshire, YO11 — £159,950 • 3 bed • 1 bath • 1119 ft²
4 bedroom terraced house for sale in Cambridge Street, Scarborough, North Yorkshire, YO12 — £140,000 • 4 bed • 1 bath • 911 ft²
2 bedroom terraced house for sale in Hoxton Road, Scarborough, North Yorkshire, YO12 — £130,000 • 2 bed • 1 bath • 1130 ft²






















































































