Turnkey holiday home with strong let potential and peaceful park setting.
- Built in 2022; modern fittings throughout
- Chain-free sale, ready to occupy or rent
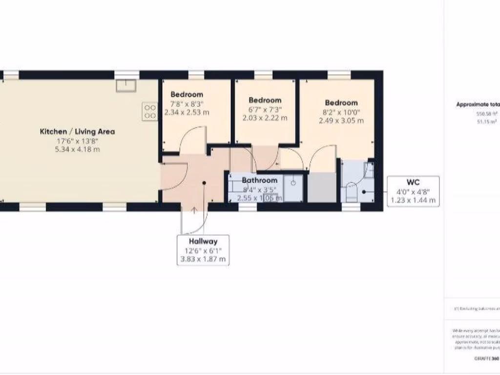
- 41ft x 14ft lodge with open-plan living
- Two parking spaces, decked patio and small garden
- On-site free fishing lake, play area and countryside walks
- 11-month holiday site; not for permanent residency
- Annual site fee c. £3,488 (2024/25) including VAT
- Tenure unspecified; compact interior room sizes
This three-bedroom Beverley lodge (41ft x 14ft) is a modern, well-presented holiday home set on Docker Holiday Park in Arkholme. Built in 2022 and offered chain-free, the property includes two parking spaces, a decked patio, small garden area and views across tranquil countryside. The open-plan living space, integrated kitchen appliances and ensuite to the main bedroom make it ready for immediate use as a family retreat or holiday let.
The park is quiet, pet- and child-friendly, and benefits from an on-site free fishing lake, play area and pleasant nature walks — attractive features for holidaymakers. Subletting is permitted and full management services are available, supporting rental income potential. Gas and electricity are metered separately and the lodge has double glazing and central heating for year-round comfort.
Buyers should note this is an 11-month holiday site (not permanent residential). The recurring site fee for 2024/25 is approximately £3,488 (including VAT). Tenure is not specified in the details provided, and the lodge’s compact footprint means internal rooms are relatively modest in size. These factors should be weighed against the income potential and low-crime, affluent rural setting.
Overall this is a turnkey modern lodge with clear holiday-let appeal: low maintenance, modern fixtures, and family-friendly park amenities. It suits buyers seeking a low-effort second home or a holiday-let investment, provided they accept site rules, the service charge and the limited seasonal occupancy.
2 bedroom lodge for sale in Hill Top Hideaway, Docker Holiday Park, Arkholme, Carnforth, LA6 — £185,000 • 2 bed • 2 bath
2 bedroom lodge for sale in Atlas Wisteria Docker Holiday Park, Carnforth LA6 1AR, LA6 — £133,995 • 2 bed • 2 bath • 800 ft²
2 bedroom lodge for sale in Docker Holiday Park, Arkholme, LA6 — £118,000 • 2 bed • 2 bath • 732 ft²
2 bedroom property for sale in Caton Road, Crook O Lune, Lancaster, LA2 — £49,995 • 2 bed • 1 bath • 381 ft²
2 bedroom caravan for sale in Carnforth, Lancashire, LA6 1FE, LA6 — £149,995 • 2 bed • 1 bath
2 bedroom property for sale in Borwick Lane, Dock Acres, Carnforth, LA6 — £69,000 • 2 bed • 1 bath














































































































