Large plot with countryside access and fast rail links for commuters.
Four double bedrooms, principal bedroom with dressing room and en suite
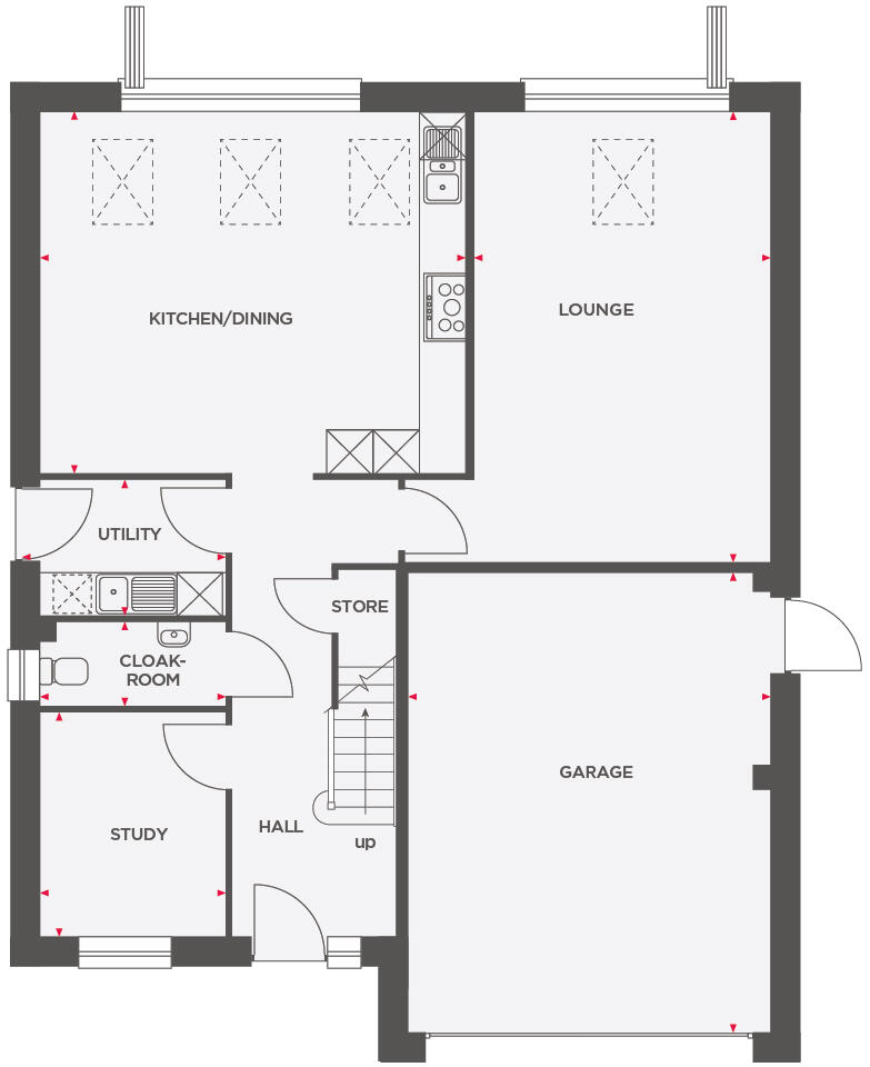
A high-spec, newly built four-bedroom detached home set on a large plot on the edge of Westbury Leigh. The house offers a generous open-plan kitchen/diner with bi-fold doors, a separate living room, home study and practical utility space — all finished to a contemporary specification with integrated appliances included.
The principal suite is particularly impressive, with a dressing room and en suite; a further guest en suite and family bathroom serve three additional double bedrooms. Practical features include solar panels, an electric car charging point, double garage and driveway parking, plus a 10-year NHBC warranty and a 2-year defects cover for peace of mind.
Location is a major draw: easy walking distance to local amenities, quick access to the town centre and mainline station for commutes to Bath, Bristol or London, and immediate proximity to open countryside and local schools rated Good. A £30,000 stamp duty contribution is offered to assist buyers with purchase costs.
Buyers should note an annual management charge of £328 for communal maintenance. The property is freehold and ready to move into, but as a new-build it carries the expected developer finishes and limited immediate opportunity for major structural alteration without permissions.
4 bedroom detached house for sale in Leighton Park Road, Westbury Leigh, BA13 — £595,000 • 4 bed • 3 bath • 1816 ft²
3 bedroom semi-detached house for sale in Leighton Park Road, Westbury Leigh, BA13 — £400,000 • 3 bed • 2 bath • 1141 ft²
3 bedroom semi-detached house for sale in Leighton Park Road, Westbury Leigh, BA13 — £385,000 • 3 bed • 2 bath • 1141 ft²
2 bedroom semi-detached house for sale in Leighton Park Road, Westbury Leigh, BA13 — £315,000 • 2 bed • 2 bath • 922 ft²
4 bedroom detached house for sale in Leighton Park Road, Westbury Leigh, BA13 — £550,000 • 4 bed • 3 bath • 1660 ft²
2 bedroom semi-detached house for sale in Leighton Park Road, Westbury Leigh, BA13 — £315,000 • 2 bed • 2 bath • 922 ft²






































































































