**Standout Features:**
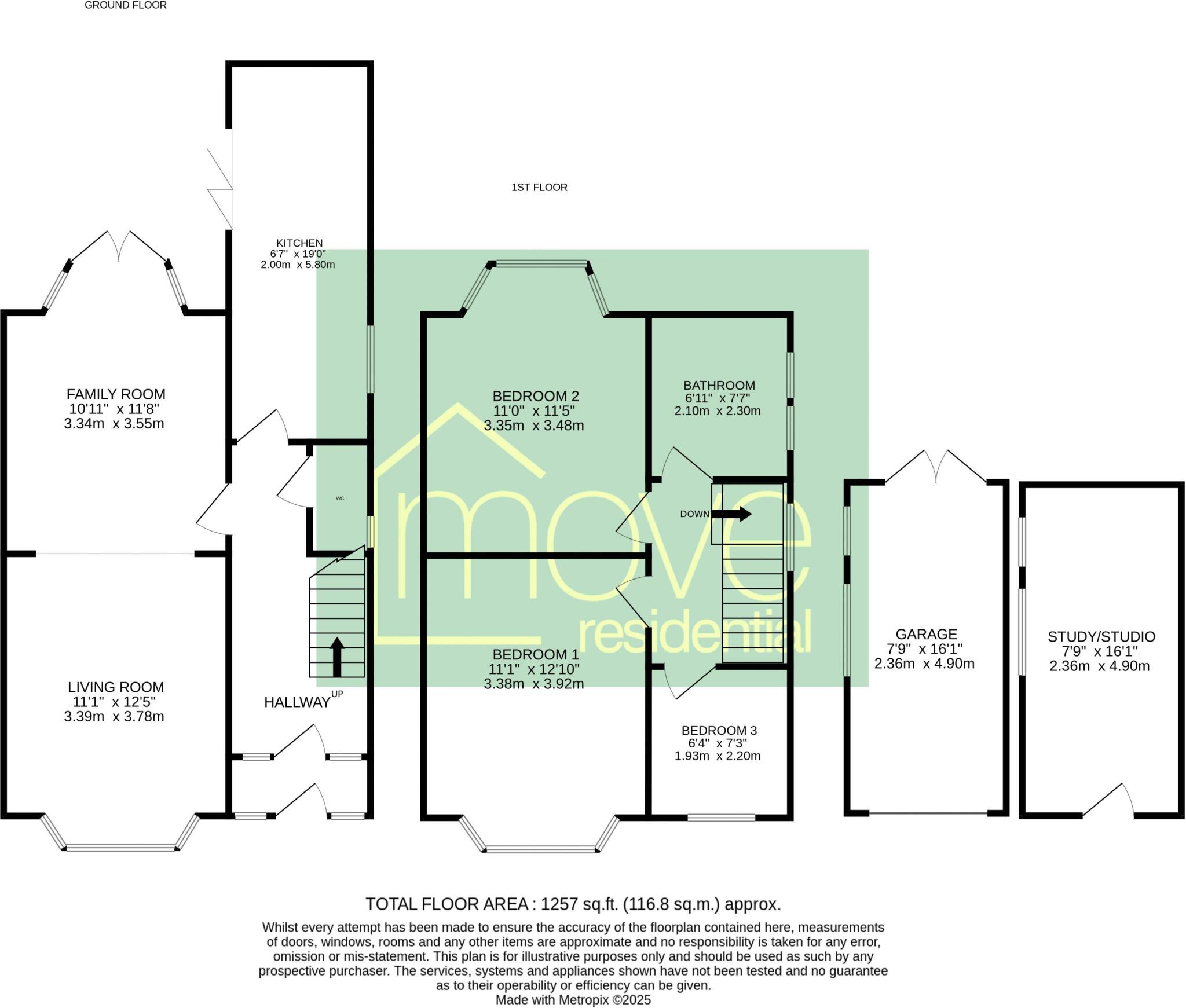
- Spacious three-bedroom detached house with over 1250 square feet of living space.
- Detached garage and versatile studio for additional storage or workspace.
- Modern breakfast kitchen with bi-fold doors that seamlessly connects indoor and outdoor spaces.
- Generous enclosed private rear garden featuring both patio and lawn areas.
- Close proximity to excellent schools, amenities, and transport links.
**Concerns:**
- Mid-20th-century construction may require modernization and maintenance.
- Local area reports a higher crime rate, which may impact potential buyers' comfort levels.
This charming three-bedroom detached house in Bromborough is a family-friendly gem, offering over 1250 square feet of versatile living space. The property features a modern breakfast kitchen with bi-fold doors that open onto a substantial private garden, perfect for entertaining and outdoor activities. With two sizable reception rooms, a contemporary bathroom, and three well-proportioned bedrooms, there’s ample room for both relaxation and family life.
For those seeking convenience, this home is located near excellent schools and a range of amenities, making it an ideal choice for families. While the property’s mid-20th-century style may necessitate some modernization, the spacious layout and inviting garden showcase its potential. The detached garage and studio provide additional flexibility for storage or creative projects. Don’t miss this opportunity to secure a comfortable and spacious family home in a sought-after area!
3 bedroom link detached house for sale in Alistair Drive, Wirral, Merseyside, CH63 — £350,000 • 3 bed • 1 bath • 1271 ft²
3 bedroom detached house for sale in Malcolm Crescent, Bromborough, Wirral, CH63 — £400,000 • 3 bed • 2 bath • 1279 ft²
3 bedroom detached house for sale in Plymyard Avenue, Bromborough, CH62 — £325,000 • 3 bed • 1 bath • 1109 ft²
3 bedroom detached house for sale in Dearnford Avenue, Bromborough, CH62 — £259,995 • 3 bed • 2 bath • 829 ft²
3 bedroom terraced house for sale in Beechwood Road, Bromborough, CH62 — £239,950 • 3 bed • 1 bath • 1372 ft²
3 bedroom semi-detached house for sale in Athelstan Close, Wirral, Merseyside, CH62 — £250,000 • 3 bed • 2 bath • 1214 ft²






































































































