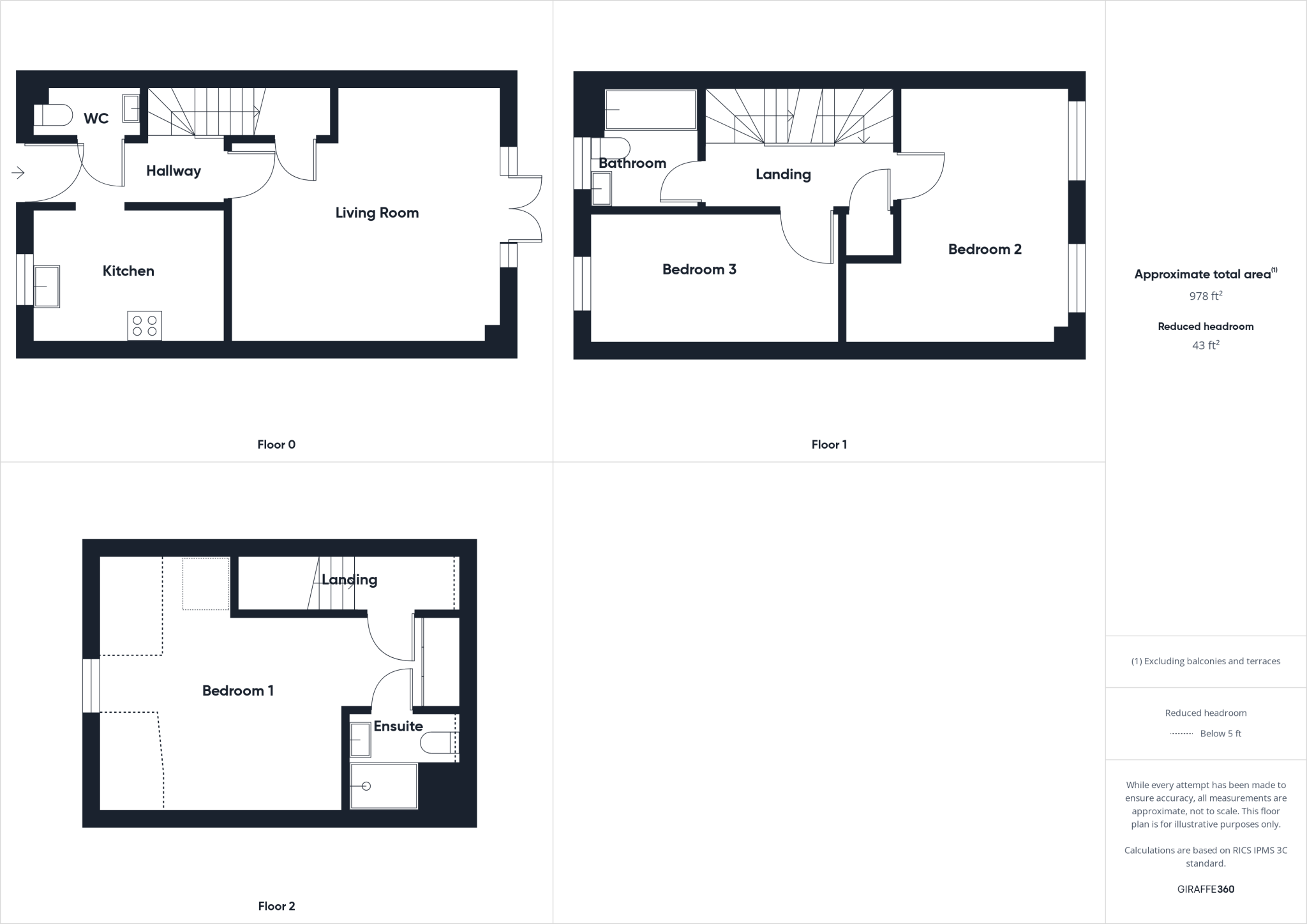
**Standout Features:**
- Chain-free 3 double bedroom end-terrace townhouse
- En-suite shower in master bedroom
- Bright open-plan living area with garden access
- Private garden with decking and lawn
- Garage and driveway for parking
- Located in the popular Moreton Hall area, known for its family-friendly environment
This contemporary three-storey townhouse is perfect for buyers seeking comfort, convenience, and space. Boasting three generous double bedrooms, including a master suite complete with an en-suite shower room, this home offers an ideal layout for families or professionals alike. The bright, open-plan living and dining area provides a seamless transition to the private rear garden, perfect for outdoor entertaining or enjoying quiet evenings.
Located in the desirable Moreton Hall neighborhood, this property enjoys a low-crime rate and access to excellent local schools rated "Good" by Ofsted, making it a smart choice for families. Though it has been well-maintained, potential buyers should note it is part of a modern construction built from 2007 onwards, ensuring energy efficiency and double glazing. With a garage and driveway parking, space is never an issue.
Given the competitive pricing at £300,000 and the chain-free status, this unique offering won’t last long in the market. Secure your viewing today and imagine your future in this welcoming family home!
3 bedroom town house for sale in Frenesi Crescent, Bury St Edmunds, IP32 — £300,000 • 3 bed • 2 bath • 820 ft²
3 bedroom town house for sale in Juniper Road, Bury St Edmunds, IP32 — £300,000 • 3 bed • 2 bath • 965 ft²
3 bedroom semi-detached house for sale in Darcy Close, Bury St Edmunds, IP32 — £300,000 • 3 bed • 1 bath • 734 ft²
2 bedroom terraced house for sale in Haselmere Close , Bury St Edmunds, IP32 — £210,000 • 2 bed • 1 bath • 468 ft²
4 bedroom detached house for sale in Appledown Drive, Bury St. Edmunds, IP32 — £480,000 • 4 bed • 2 bath • 1180 ft²
5 bedroom detached house for sale in Kingfisher Road, Bury St. Edmunds, IP32 — £495,000 • 5 bed • 3 bath • 1970 ft²














































