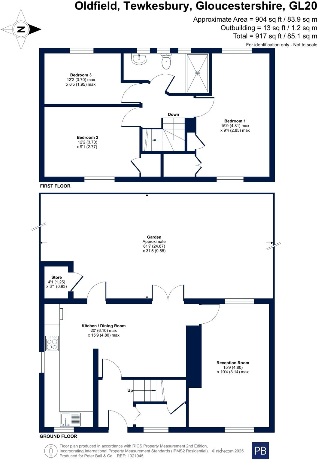
**Standout Features:**
- Three spacious bedrooms, including two doubles and a larger-than-average single
- Open-plan kitchen/diner with integrated appliances and direct access to a large garden
- Ample off-street parking with space for 4-5 cars
- Expansive, private rear garden, ideal for families and outdoor entertaining
- Conveniently located near Tewkesbury town centre, schools, and amenities
**Concise Summary:**
Discover this charming end-of-terrace three-bedroom home in Tewkesbury, perfect for families, first-time buyers, or investors seeking rental potential. This well-designed property boasts a light-filled lounge and a modern open-plan kitchen/diner that flows seamlessly into a substantial garden space—a rarity for town center living. The large rear garden features a patio area ideal for hosting, along with practical storage sheds tucked away at the back. Upstairs, you’ll find three comfortable bedrooms, two with built-in wardrobes, complemented by a modern family shower room.
While the neighborhood is peaceful, it's classified as an area of multi-ethnic hardship with average crime rates. However, the location offers excellent mobile connectivity and fast broadband, making it a practical choice for commuters and families alike. With council tax rated as affordable and an enticing price of £270,000, early viewing is recommended to experience the spaciousness, comfort, and convenience for yourself. Don’t miss out on this opportunity to secure a family-friendly home with room to grow!
3 bedroom end of terrace house for sale in Newland Place, Tewkesbury, GL20 — £170,000 • 3 bed • 1 bath • 905 ft²
3 bedroom town house for sale in Barton Mews, Barton Road, Tewkesbury, Gloucestershire, GL20 — £265,000 • 3 bed • 2 bath • 1055 ft²
3 bedroom semi-detached house for sale in Despenser Road, Tewkesbury, Gloucestershire, GL20 — £230,000 • 3 bed • 1 bath • 845 ft²
3 bedroom terraced house for sale in Queens Road, Tewkesbury, Gloucestershire, GL20 — £220,000 • 3 bed • 1 bath • 1106 ft²
3 bedroom semi-detached house for sale in Sycamore Road, Tewkesbury, Gloucestershire, GL20 — £270,000 • 3 bed • 1 bath • 878 ft²
3 bedroom semi-detached house for sale in York Road, Tewkesbury, Gloucestershire, GL20 — £300,000 • 3 bed • 1 bath • 1141 ft²






























































































