Generous plot near Ringwood with approved plans to extend — ideal for families or renovators..
- Detached two-bedroom bungalow on ~0.25 acre south/west plot
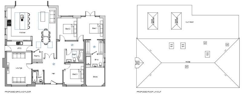
- Planning permission granted for 3–4 bedroom extension (drawings available)
- Separate 2023 chalet-style permission lapsed; fresh consent may be needed
- Large sitting room, conservatory, kitchen/dining and family bathroom
- Off-road parking for multiple cars and single-and-a-half garage
- Detached studio/office in garden, suitable for home working
- Mid‑1950s construction — likely need for updating and refurbishment
- Council tax above average; vendor suited for timely sale
This detached two-bedroom bungalow sits on a generous south/west-facing plot approaching 0.25 acre, about a mile’s flat walk from Ringwood town centre. The single-storey layout includes a large sitting room with conservatory, kitchen/dining room, two double bedrooms and a family bathroom — practical accommodation for downsizers or a young family.
Planning permission has been granted to extend to a three/four-bedroom bungalow, and separate permission (now lapsed) existed for a four-bedroom chalet-style house. Drawings are available for review, making this a strong proposition for buyers wanting to add space or create a bespoke home. The vendor is suited, which may support a straightforward sale.
Outside there is off-road parking for multiple cars, a single-and-a-half size garage and a private rear garden with a detached studio/office. The plot and layout offer clear potential for extension or reconfiguration subject to planning and building work. Services are mains gas with boiler and radiators; broadband and mobile signal are strong.
Notable drawbacks: the property is a mid-1950s build with only two bedrooms and one bathroom in its current form, and one planning approval has lapsed. Council tax is above average. Buyers should allow budget for updating and any extension works required to realise the full potential.
2 bedroom detached bungalow for sale in Orchard Close, Ringwood, BH24 — £435,000 • 2 bed • 1 bath • 881 ft²
3 bedroom bungalow for sale in Meadow Road, Ringwood, Hampshire, BH24 — £530,000 • 3 bed • 2 bath • 1007 ft²
2 bedroom bungalow for sale in Parsonage Barn Lane, Ringwood, BH24 — £425,000 • 2 bed • 1 bath • 997 ft²
3 bedroom bungalow for sale in Seymour Road, Ringwood, Hampshire, BH24 — £500,000 • 3 bed • 1 bath • 1625 ft²
4 bedroom detached house for sale in Christchurch Road, Ringwood, BH24 — £675,000 • 4 bed • 3 bath • 1922 ft²
2 bedroom bungalow for sale in St Ives Park, Ashley Heath, BH24 2JX, BH24 — £550,000 • 2 bed • 2 bath • 1576 ft²


































































































