Turnkey semi-detached home with generous parking and contemporary interiors.
- Fully renovated inside and out with new wiring and windows
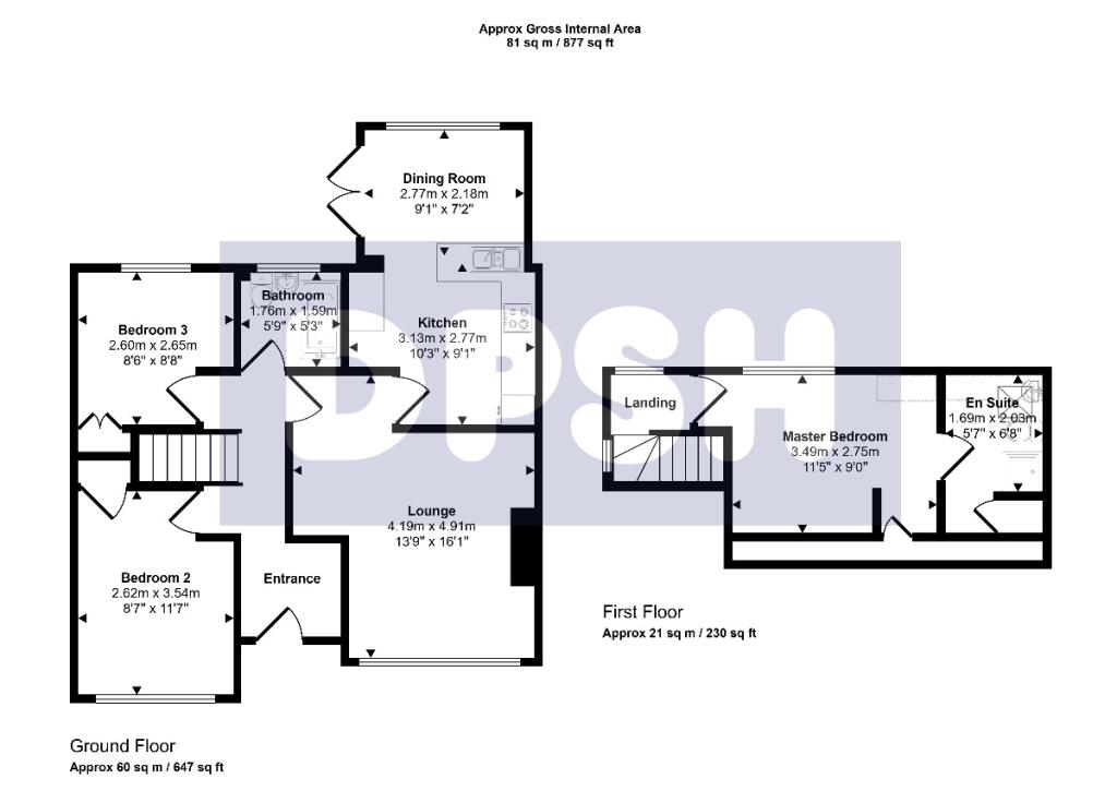
- Modern dining kitchen with integrated appliances
- Master bedroom spans full width with en-suite
- Double driveway and covered car port for multiple vehicles
- Newly fitted combi boiler and new flooring throughout
- Enclosed rear garden with patio and large storage shed
- Area records above-average crime and higher deprivation levels
This recently renovated three-bedroom semi-detached dormer bungalow offers a turn-key home in Morley with contemporary finishes throughout. The ground floor features a bright lounge, modern dining kitchen and two well-proportioned bedrooms, while the first-floor master occupies the full width and includes an en-suite and useful under-eaves storage.
Practical upgrades include a newly fitted combi boiler, replacement windows and doors, full rewire and fresh flooring and décor — ideal for buyers seeking a low-maintenance move. The double driveway, covered car port and enclosed rear garden with patio and storage shed add everyday convenience and entertaining space.
Location is a strong selling point for commuters and downsizers: good motorway links to Leeds, Wakefield, and fast broadband and excellent mobile signal for home working. Local schools and amenities are close by, making the area convenient for families and professionals.
Buyers should note local social indicators: the area records above-average crime and higher levels of deprivation. The property is average in overall size and style, so buyers requiring large rooms or extensive outdoor space should check dimensions. Tenure is freehold and council tax banding is affordable.
2 bedroom semi-detached bungalow for sale in Britannia Road, Leeds, West Yorkshire, LS27 — £210,000 • 2 bed • 1 bath • 600 ft²
4 bedroom bungalow for sale in Wide Lane, Morley, Leeds, West Yorkshire, LS27 — £280,000 • 4 bed • 3 bath • 1201 ft²
3 bedroom detached house for sale in King George Croft, Morley, Leeds, LS27 — £305,000 • 3 bed • 3 bath • 980 ft²
3 bedroom semi-detached bungalow for sale in Deanhurst Gardens, Morley, Leeds, LS27 — £265,000 • 3 bed • 2 bath • 904 ft²
2 bedroom bungalow for sale in Scatcherd Lane, Morley, Leeds, West Yorkshire, LS27 — £190,000 • 2 bed • 1 bath • 835 ft²
2 bedroom semi-detached house for sale in Hill Court Avenue, Leeds, LS13 — £220,000 • 2 bed • 1 bath • 587 ft²


































































































































