Bright, modern ground-floor one-bedroom with parking and long lease near Brentwood Station.
Chain-free ground-floor one-bedroom apartment, c.505 sq ft
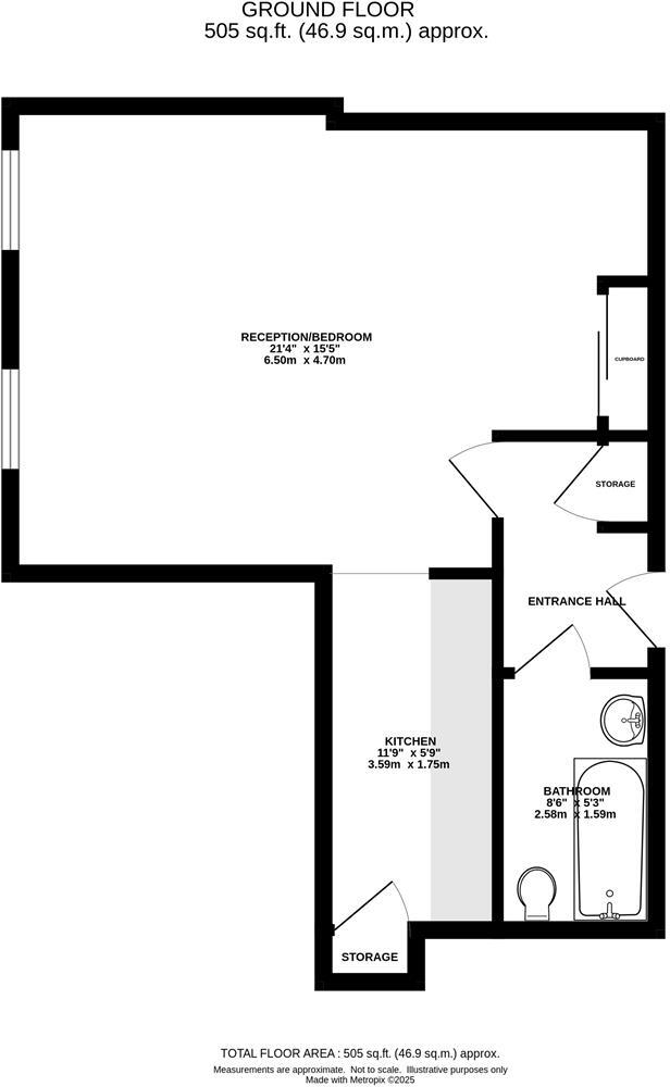
A bright, ground-floor one-bedroom apartment in the well-maintained Ingrave House development, offered chain-free and ready to move into. The open-plan reception/bedroom flows into a contemporary fitted kitchen and a modern bathroom; built-in storage and a utility cupboard add practical space. At about 505 sq ft, the layout suits a first-time buyer seeking a low‑maintenance town-centre home with long lease security.
The building provides a secure communal entrance with lift access, an allocated off-street parking space and a communal roof terrace that delivers far-reaching views across Brentwood towards the London skyline. The property was constructed in 2021 so finishes are recent and thermal performance is average; 246 years remain on the lease, giving long-term certainty.
Notable running costs and limitations are clear: the annual service charge is approximately £1,400 and heating is electric room heaters, which may be more expensive than gas alternatives. Broadband speeds are reported slow in the area — important if you work from home. Crime levels are average for the area.
This apartment will appeal to first-time buyers who prioritise a central location, transport links and a straightforward, modern home. It also suits investors seeking a town-centre rental with long lease length, though factor in the service charge and electric heating when calculating returns.
1 bedroom apartment for sale in Brentwood, CM15 — £300,000 • 1 bed • 1 bath • 431 ft²
1 bedroom apartment for sale in Ingrave Road, Brentwood, CM15 — £270,000 • 1 bed • 1 bath • 476 ft²
1 bedroom apartment for sale in Ongar Road, Brentwood, CM15 — £250,000 • 1 bed • 1 bath • 587 ft²
1 bedroom flat for sale in Ingrave Road, BRENTWOOD, CM15 — £260,000 • 1 bed • 1 bath • 473 ft²
2 bedroom apartment for sale in Ingrave House, Brentwood, Essex, CM15 — £375,000 • 2 bed • 2 bath • 568 ft²
1 bedroom apartment for sale in William Hunter Way, Brentwood, CM14 — £200,000 • 1 bed • 1 bath • 399 ft²


































































