**Standout Features:**
- Two-bedroom semi-detached house in a popular over-55s community
- Private garden with sliding patio doors leading from the living room
- Excellent local amenities including shops, pubs, and community centers
- Chain-free sale for quick and hassle-free transactions
- Affordable council tax and manageable service charge of £1,516
**Concerns:**
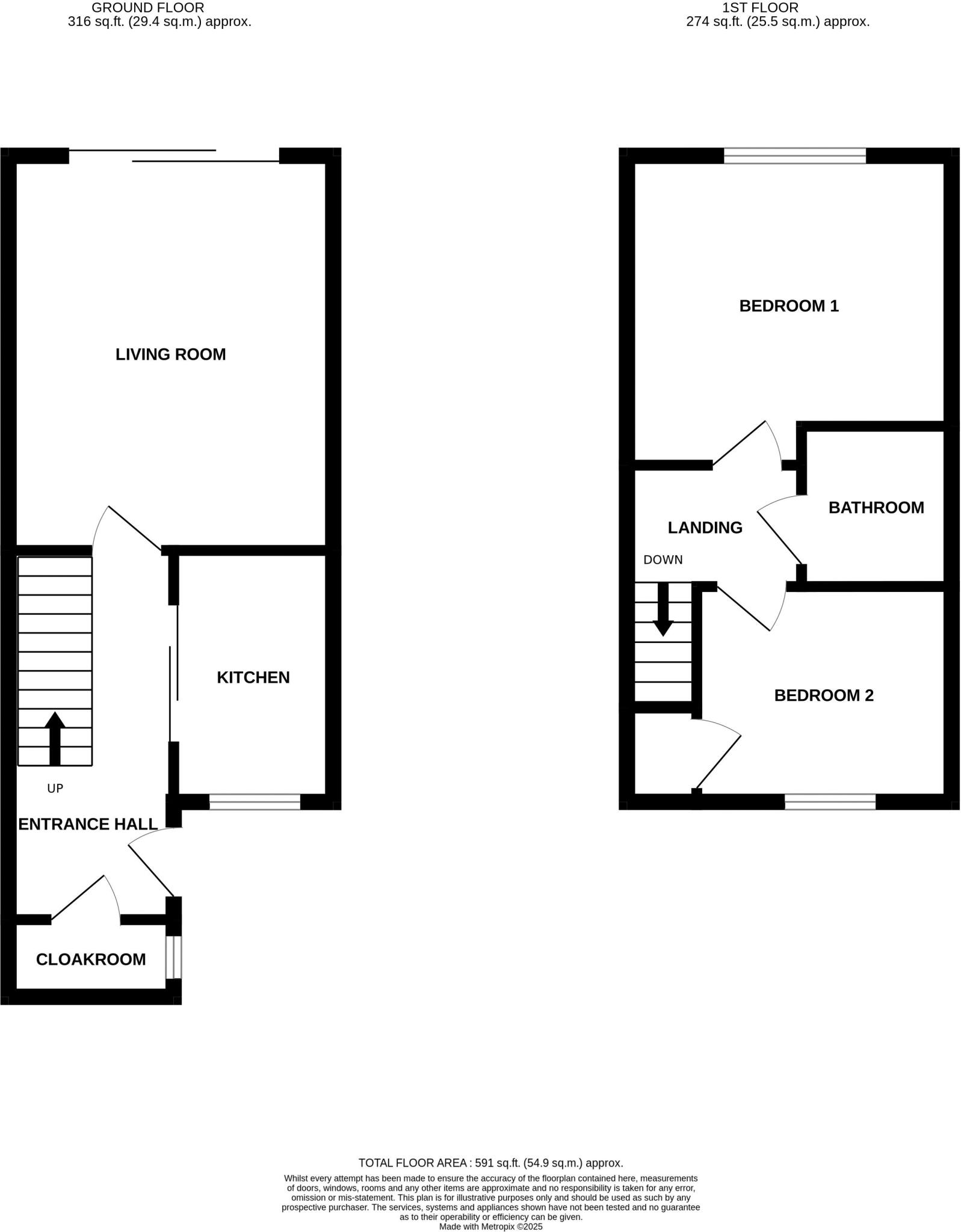
- Small overall size (591 sq ft) may not accommodate larger families
- Broadband speed is reportedly slow
- Basic decor may require updates to modern tastes
This cozy two-bedroom semi-detached retirement property offers an inviting living space tailored for those over 55. Located in the heart of Churchdown, residents will appreciate the ideal blend of comfort and community, with local amenities just a stroll away. Step through the private entrance into a welcoming hall that leads to the living room, where natural light floods the space through mid-century sliding doors, creating a seamless connection to the private rear garden.
The first floor boasts two well-sized bedrooms and a modern bathroom, making it perfect for downsizers or couples seeking a peaceful retreat. While the compact layout ensures effortless maintenance, the property’s future potential is evident for those looking to inject some personal style or updates. With affordable council tax rates and no onward chain, this gem is not to be missed—experience the tranquil lifestyle you've been waiting for in this secure and supportive community. Act quickly to make this house your next home!
2 bedroom terraced house for sale in Church Road, Churchdown, Gloucester, Gloucestershire, GL3 — £175,000 • 2 bed • 1 bath • 530 ft²
2 bedroom terraced house for sale in Church Road, Churchdown, Gloucester, GL3 — £200,000 • 2 bed • 1 bath • 542 ft²
2 bedroom terraced house for sale in Church Road, Churchdown, Gloucester, Gloucestershire, GL3 — £165,000 • 2 bed • 1 bath • 598 ft²
2 bedroom terraced house for sale in The Manor, Church Road, Churchdown, Gloucester, GL3 — £175,000 • 2 bed • 2 bath • 536 ft²
2 bedroom apartment for sale in Church Road, Churchdown, Gloucester, Gloucestershire, GL3 — £180,000 • 2 bed • 1 bath • 548 ft²
2 bedroom apartment for sale in Church Road, Churchdown, Gloucester, GL3 — £225,000 • 2 bed • 1 bath • 543 ft²










































