NW3 6BH - 6 bed hampstead victorian residence in Arkwright Road, NW3…

View on Property Piper

6 bedroom flat for sale in Arkwright Road, Hampstead, NW3

Summary - 40A ARKWRIGHT ROAD LONDON NW3 6BH

6 bed 4 bath Flat

Spacious, renovated family home with garden and excellent transport nearby.
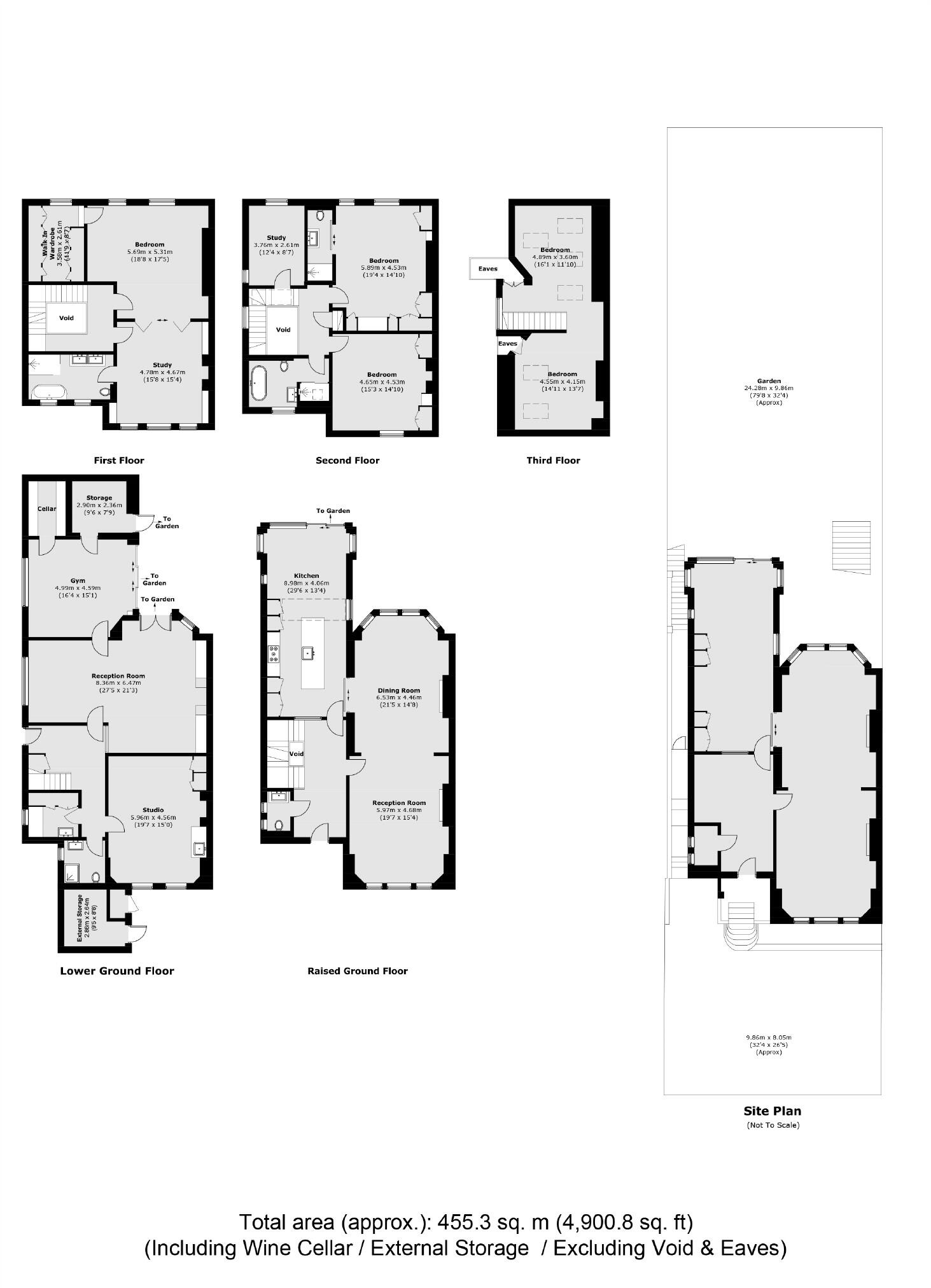
- Approximately 5,028 sq ft over five levels including eaves
- Six generous bedrooms and multiple reception rooms
- Recently completed four-year comprehensive renovation
- Landscaped rear garden and private driveway for one car
- High ceilings, sash/bay windows and strong natural light
- Freehold tenure in highly affluent NW3 location
- Pre-1900 solid brick walls; likely limited insulation
- Council Tax Band H — very expensive
A striking late-Victorian red-brick house on one of Hampstead’s most desirable streets, fully renovated over four years to combine period proportions with contemporary finishes. At approximately 5,028 sq ft across five levels (including eaves), the property offers exceptionally large rooms, high ceilings and generous natural light from bay and sash windows.

Accommodation is flexible for a large family or conversion to multi-room rental: multiple reception rooms, a substantial kitchen/dining area, ancillary cellar/storage and six principal bedrooms with at least four bathrooms. The house benefits from a private driveway for one car, a thoughtfully landscaped rear garden and useful attic and cellar space for storage or future adaptation.

Location is a strong selling point: moments from Hampstead Village, top independent schools (including UCS and South Hampstead) and excellent transport links (Finchley Road & Frognal Overground and nearby Tube lines). Tenure is freehold and the house sits in a very affluent, low-crime neighbourhood with fast broadband and excellent mobile signal.

Buyers should note material points: the property is a period building (pre-1900) with solid brick walls and no assumed cavity insulation; the council tax band is very expensive (Band H). Although recently renovated, prospective purchasers should verify the quality of finishes, mechanical services and any planning/headroom constraints for loft/extension works before committing.

Property Details

Brochure Descriptions

Image Descriptions

Textual Property Features

Target Audience

AI Tags

Detected Visual Features

EPC Details

Nearby Schools

Nearest Bars And Restaurants

,,,,}

Nearest General Shops

,,}

Nearest Grocery shops

,,}

Nearest Supermarkets

,,}

Nearest Religious buildings

,,}

Nearest Medical buildings

,,,}

Nearest Airports

,}

Nearest Leisure Facilities

,,,,}

Nearest Tourist attractions

,,}

Nearest Train stations

,,,,}

Nearest Bus stations and stops

,,,,}

Nearest Hotels

,,}

Tags

Local Market Stats

AirBnB Data

Similar Properties

Meta

High Res Images

Compatible Images

Low res Images

Thumbnails

Raw Images

High Res Floorplan Images

Compatible Floorplan Images

Low res Floorplan Images

FloorplanImages Thumbnail

Raw Floorplan Images