**Standout Features:**
- **Guide Price:** £300,000 - £325,000
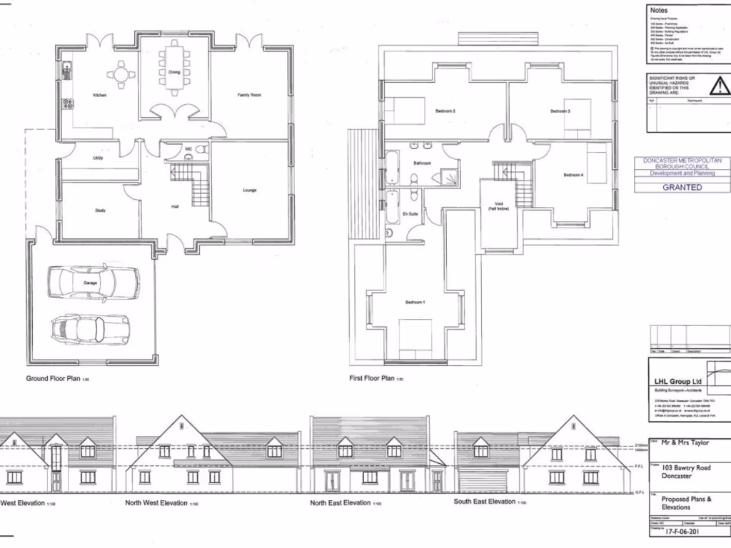
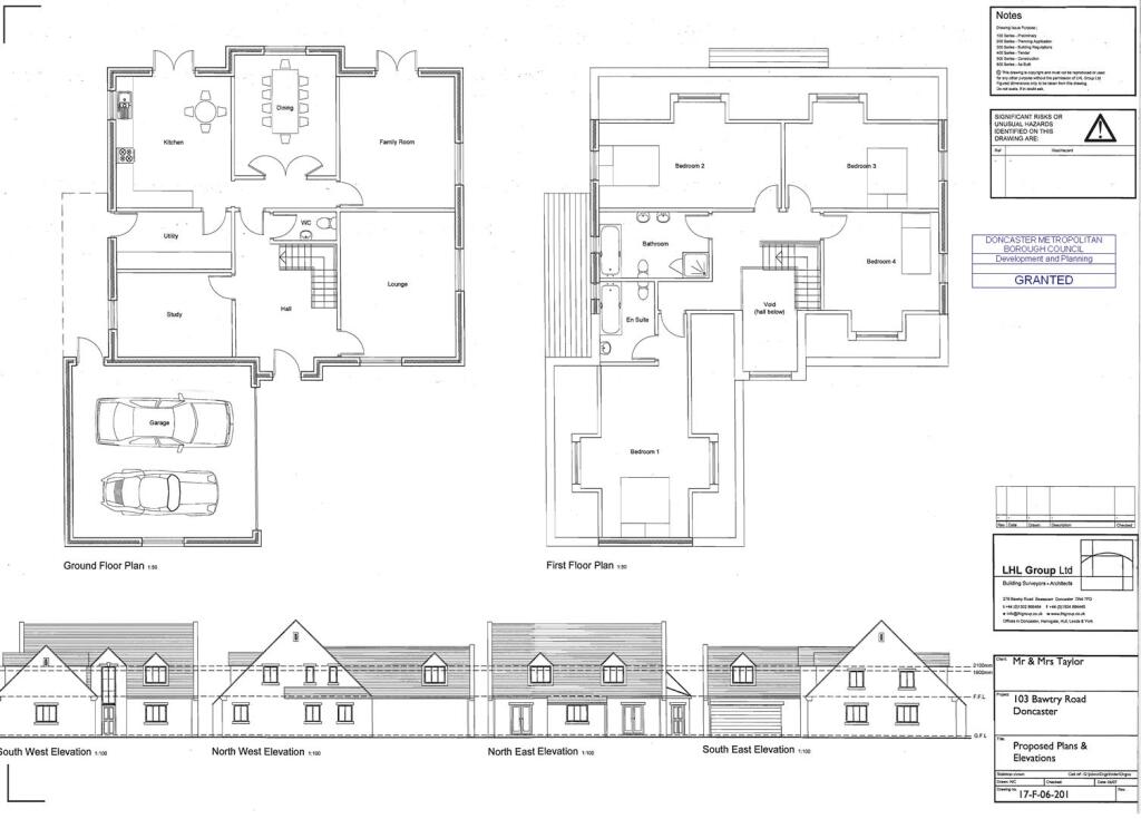
- **Large, Level Plot:** Approx 18.7m frontage and 43.6m depth
- **Full Planning Permission:** Valid until December 2023 for a 4-bedroom detached dwelling
- **Secluded Location:** Set well back from Bawtry Road with gated access
- **Mature Gardens:** Spacious outdoor area ideal for landscaping or outdoor enhancements
- **Convenient Access:** Close to M18 & A1 Motorway, excellent for commuters
- **Affluent Neighborhood:** Low crime rates and proximity to local amenities
This generous, freehold land opportunity on Bawtry Road, Doncaster, presents a unique chance to build your dream home. The plot, measuring approximately 18.7m by 43.6m, is ideal for a spacious, four-bedroom detached dwelling, with full planning permission still valid as of December 2023. Tucked away from the main road, you’ll enjoy a long driveway and attractive mature gardens that enhance privacy and tranquility.
Located in the sought-after Bessacarr area, this plot offers not only a serene environment but also excellent links to the M18 and A1, making commuting effortless. Nearby amenities include the vibrant Lakeside retail and leisure complex, with numerous schools having good Ofsted ratings, ensuring family-friendly living. Don't miss out on this exceptional opportunity to secure a slice of desirable real estate—perfect for families or investors looking for potential and comfort in a peaceful suburban setting.
 Plot for sale in 27 Warning Tongue Lane, Bessacarr, Doncaster, South Yorkshire, DN4 6TB, DN4 — £575,000 • 7 bed • 6 bath • 6000 ft²
 Plot for sale in 27 Warning Tongue Lane, Bessacarr, Doncaster, South Yorkshire, DN4 6TB, DN4 — £575,000 • 7 bed • 6 bath • 6000 ft² Plot for sale in Building Plot Carr Lane, Doncaster, South Yorkshire, DN4 — £200,000 • 1 bed • 1 bath
 Plot for sale in Building Plot Carr Lane, Doncaster, South Yorkshire, DN4 — £200,000 • 1 bed • 1 bath Land for sale in Bawtry Road, Doncaster, DN4 — £500,000 • 1 bed • 1 bath • 23958 ft²
 Land for sale in Bawtry Road, Doncaster, DN4 — £500,000 • 1 bed • 1 bath • 23958 ft² Land for sale in Bawtry Road, Tickhill, Doncaster, DN11 — £190,000 • 1 bed • 1 bath • 1220 ft²
 Land for sale in Bawtry Road, Tickhill, Doncaster, DN11 — £190,000 • 1 bed • 1 bath • 1220 ft² Land for sale in Thurnscoe Road, Bolton-upon-Dearne, Rotherham, South Yorkshire, S63 — £150,000 • 1 bed • 1 bath
 Land for sale in Thurnscoe Road, Bolton-upon-Dearne, Rotherham, South Yorkshire, S63 — £150,000 • 1 bed • 1 bath Plot for sale in PLOT 2 Stables Lane, Barnburgh, Doncaster, DN5 — £200,000 • 4 bed • 2 bath • 450 ft²
 Plot for sale in PLOT 2 Stables Lane, Barnburgh, Doncaster, DN5 — £200,000 • 4 bed • 2 bath • 450 ft²






















