SM1 4HZ - 2 bedroom terraced house for sale in Harold Road, Sutton, S…

View on Property Piper

2 bedroom terraced house for sale in Harold Road, Sutton, SM1

Summary - 17, HAROLD ROAD, SUTTON SM1 4HZ

2 bed 1 bath Terraced

**Standout Features:**
- 2 Bedrooms with a stylish loft conversion
- Spacious garden with a charming conservatory
- Unique Edwardian-style fittings and fixtures
- Modern cottage-style kitchen with high-quality materials
- Freehold property in a low-crime, affluent area
- Excellent mobile and fast broadband connectivity

**Summary:**
Discover this captivating 2-bedroom terraced home in the heart of a family-friendly neighborhood, perfect for both growing families and young professionals. This property boasts a beautifully finished loft conversion, providing versatile space for an office or extra bedroom. Enjoy cozy evenings in the generous through lounge, where significant Edwardian architectural elements create a warm and inviting atmosphere. The modern cottage-style kitchen, with its high-quality fixtures, and the spacious garden featuring a lovely conservatory, make this house ideal for entertaining or enjoying peaceful moments outdoors.

Set in a desirable location, this home is surrounded by excellent local amenities and reputable schools, ensuring a nurturing environment for family life. Although the property requires some minor maintenance, including insulation upgrades for energy efficiency, its unique character and charm set it apart. With low crime rates and community engagement, this picturesque abode is not just a house, but a place to create lasting memories. Don’t wait—homes like this are rare to find and tend to move quickly. Schedule your viewing today and step into your future!

Property Details

Image Descriptions

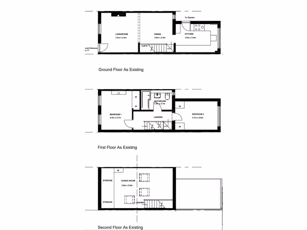
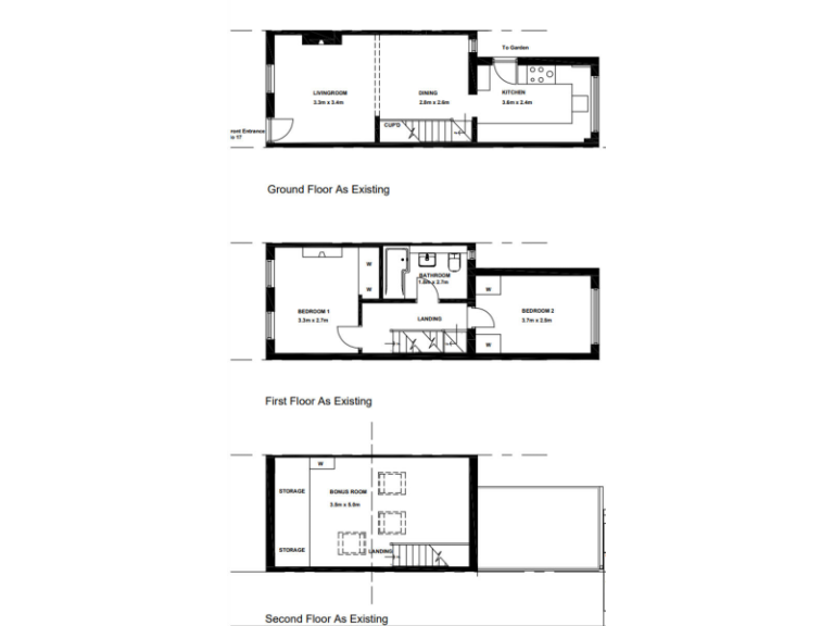
Floorplan Description

Rooms

Textual Property Features

Detected Visual Features

EPC Details

Nearby Schools

Nearest Bars And Restaurants

,,,,}

Nearest General Shops

,,}

Nearest Grocery shops

,,}

Nearest Supermarkets

,,}

Nearest Religious buildings

,,}

Nearest Medical buildings

,,,}

Nearest Airports

,,}

Nearest Leisure Facilities

,,,,}

Nearest Tourist attractions

,,}

Nearest Train stations

,,,,}

Nearest Bus stations and stops

,,,,}

Nearest Hotels

,,}

Tags

Local Market Stats

AirBnB Data

Similar Properties

Meta

High Res Images

Compatible Images

Low res Images

Thumbnails

Raw Images

High Res Floorplan Images

Compatible Floorplan Images

Low res Floorplan Images

FloorplanImages Thumbnail

Raw Floorplan Images