Charming two-bed stone cottage with garage and garden — chain free, ideal for renovation.
Chain free with freehold tenure
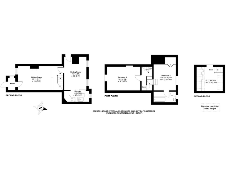
Two bedrooms plus loft room, traditional cottage layout
Garage and driveway; decent plot with front and rear gardens
Many original features: exposed beams, stone fireplace
Requires updating throughout; kitchen and bathroom dated
EPC Band F — insulation and heating likely need improvement
Slow broadband despite excellent mobile signal
No flood risk; area affluent with low local crime
Set on a pleasant street in Leonard Stanley, this semi-detached stone cottage blends original character with practical outside space. The property offers exposed beams, a wood-burning stove, two main bedrooms plus a loft room and a single garage — all offered chain free and with freehold tenure. The lawned front and rear gardens, greenhouse and vegetable patch give immediate outdoor appeal and scope for simple landscaping.
The layout is traditional: sitting room, dining/kitchen and rear porch on the ground floor; two bedrooms and family bathroom on the first floor; a loft room above. Period features are intact throughout, but the house requires updating — recent photos and the EPC Band F reflect that heating, insulation and kitchen/bathroom modernisation will be needed to improve comfort and running costs. Walls are stone with assumed lack of insulation in places.
Practical positives include a single garage with driveway access, excellent mobile signal, no flood risk and straightforward road links to Stonehouse, Stroud and J13 of the M5. Broadband is reported slow, and heating currently uses a mix of room heaters and mains gas, so buyers should budget for improved heating and connectivity if required.
This cottage will suit buyers looking for a character home to personalise — a young family, couple or buyer moving from a town seeking rural traits. It also suits those wanting a renovation project with clear potential rather than a turnkey purchase. Important to note are the EPC rating and the need for modernisation; sensible pre-purchase surveys and quotes are recommended before committing.
5 bedroom semi-detached house for sale in Seven Waters, Leonard Stanley, Stonehouse, GL10 — £619,950 • 5 bed • 2 bath • 2154 ft²
2 bedroom semi-detached house for sale in Wesley Road, Leonard Stanley, Stonehouse, GL10 — £274,950 • 2 bed • 1 bath • 786 ft²
5 bedroom semi-detached house for sale in Bath Road, Leonard Stanley, Stonehouse, GL10 — £574,950 • 5 bed • 2 bath • 1630 ft²
5 bedroom semi-detached house for sale in Church Road, Leonard Stanley, Stonehouse, GL10 — £750,000 • 5 bed • 2 bath • 2297 ft²
2 bedroom end of terrace house for sale in Ryeford, Stonehouse, Gloucestershire, GL10 — £325,000 • 2 bed • 1 bath • 718 ft²
4 bedroom semi-detached house for sale in Church Street, Kings Stanley, GL10 — £325,000 • 4 bed • 1 bath • 1064 ft²










































































