Spacious 1930s detached home near Rustington village and the seafront..
Chain-free detached 1930s house on a large plot
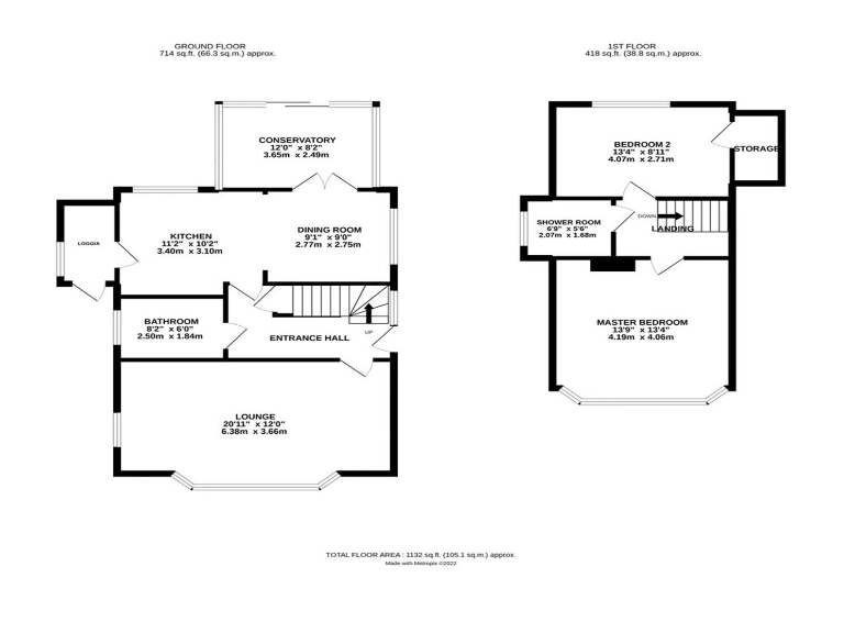
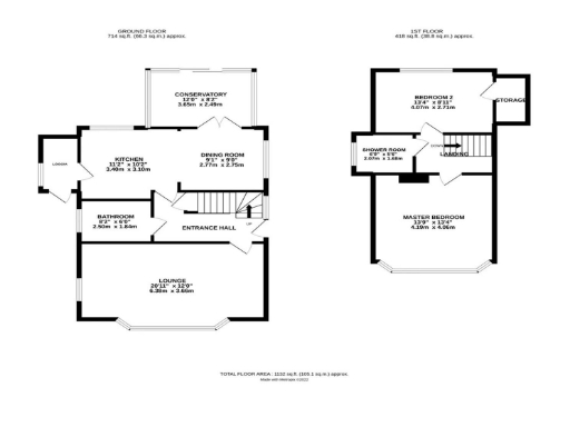
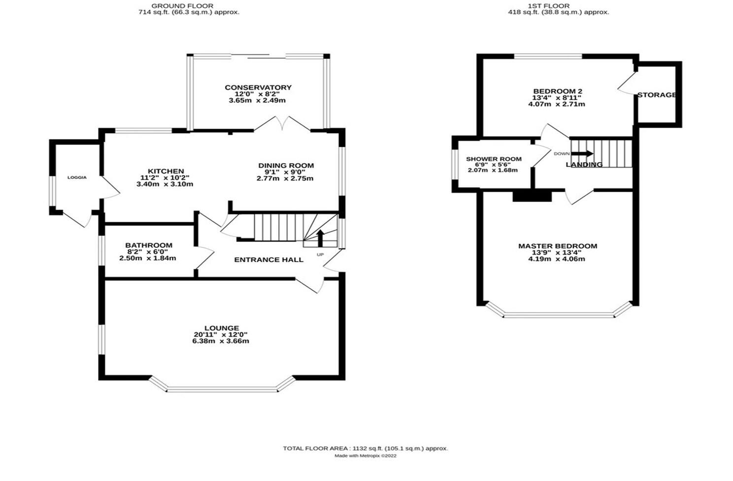
Two double bedrooms with two bathrooms, flexible layout
West-facing garden with two patio areas, good sun exposure
Detached garage and long private driveway for multiple cars
Generous living room with bay window and conservatory link
Some areas require updating and cosmetic attention
Freehold tenure; excellent mobile signal and fast broadband
Very low local crime; walking distance to village and seafront
Positioned between Rustington village and the seafront, this 1930s detached house sits on a large plot and offers comfortable, adaptable accommodation over two floors. The home benefits from generous room proportions, a bright dual-aspect living room with bay window, and a modernised kitchen flowing into a conservatory. A west-facing garden and detached garage add outdoor appeal and practical storage.
The layout works well for downsizers or retired couples seeking a low-hassle, single-family home with useful outdoor space. Two double bedrooms and two bathrooms give flexibility for guests or a home office. Practical features include off-street parking for multiple vehicles, gas central heating, excellent mobile signal and fast broadband — useful for remote working or staying connected.
The house retains 1930s character and is presented in broadly good order, but there are areas that would benefit from updating and personalisation to maximise value. The garden and some external areas need attention, and buyers seeking a fully turnkey finish may want to factor in cosmetic work. The property is chain free and freehold, simplifying the purchase process.
Located in a very low-crime, affluent area with good local schools and regular bus links, the home offers a relaxed coastal lifestyle within easy reach of local amenities and the beach. Overall, this is a spacious, characterful detached home offering scope for modest improvement to create a comfortable long-term residence.
2 bedroom bungalow for sale in Broadmark Avenue, Rustington, Littlehampton, West Sussex, BN16 — £550,000 • 2 bed • 2 bath • 1465 ft²
3 bedroom detached house for sale in Sea Lane, Rustington, Littlehampton, West Sussex, BN16 — £460,000 • 3 bed • 1 bath • 1491 ft²
3 bedroom semi-detached house for sale in Old Manor Road, Rustington, West Sussex, BN16 — £425,000 • 3 bed • 1 bath • 754 ft²
2 bedroom terraced house for sale in Hawthorn Close, Rustington, Littlehampton, West Sussex, BN16 — £300,000 • 2 bed • 1 bath • 693 ft²
2 bedroom end of terrace house for sale in Ashton Gardens, Rustington, BN16 — £300,000 • 2 bed • 1 bath • 805 ft²
3 bedroom detached house for sale in Chanctonbury Close, Rustington, BN16 — £500,000 • 3 bed • 1 bath • 1540 ft²


























