Three-bedroom detached house on a generous plot with strong refurbishment potential.
No onward chain — immediate purchase possible
Detached house on generous plot with private rear garden
Driveway parking for multiple cars plus attached garage
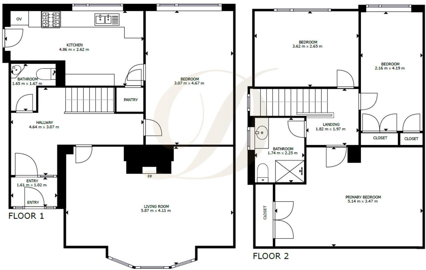
Three bedrooms, two receptions; approx 1,141 sq ft
Requires full interior renovation throughout (EPC D)
Council Tax band E — above-average running costs
Fast broadband and very low local crime rate
Built circa 1967–1975; check services and glazing dates
Set on a generous plot in Rainford, this three-bedroom detached house offers immediate possession with no onward chain and strong scope to modernise. The property measures around 1,141 sq ft, has driveway parking for multiple cars, an attached garage, and a private rear garden — practical assets for family life or buyers seeking extra space.
Internally the layout includes two reception rooms, a ground-floor WC and a kitchen that could be opened up into an open-plan kitchen-diner, subject to consent. The first floor has three good-sized bedrooms and a three-piece shower room. The house was built in the late 1960s/early 1970s and has double glazing and gas central heating; however the interior requires renovation throughout, giving a buyer scope to add modern finishes and improve energy performance (current EPC D).
Practical positives include fast broadband, very low local crime rates and proximity to four Good-rated primary/secondary schools and local amenities. Notable drawbacks are the need for full modernisation, an above-average Council Tax band (E) and the unknown date of some services and glazing, which buyers should survey. Overall this is a solid detached property with clear potential for value uplift after refurbishment.
3 bedroom semi-detached house for sale in Kendal Drive, Rainford, St. Helens, WA11 — £190,000 • 3 bed • 1 bath
3 bedroom detached house for sale in Scarisbrick Road, Rainford, WA11 — £285,000 • 3 bed • 1 bath • 957 ft²
3 bedroom detached house for sale in Ormskirk Road, Rainford, WA11 8DB, WA11 — £325,000 • 3 bed • 2 bath • 1271 ft²
3 bedroom semi-detached house for sale in Knowsley View, Rainford, St. Helens, WA11 8SN, WA11 — £250,000 • 3 bed • 1 bath • 1163 ft²
5 bedroom detached house for sale in Beech Gardens, Rainford, WA11 — £384,950 • 5 bed • 1 bath • 1227 ft²
3 bedroom semi-detached house for sale in Witton Way, Rainford, WA11 8JT, WA11 — £235,000 • 3 bed • 1 bath • 1034 ft²


































































































