Spacious single-storey country home on four acres for family living.
Large private plot of approx. 4 acres with potential equestrian or smallholding use
Completed in 2025 — modern fixtures, newly renovated and move-in ready
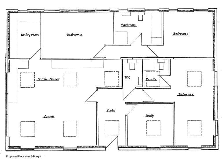
Single-storey detached conversion with three double bedrooms and study
Open-plan living, quartz kitchen, separate utility, and en-suite to main bedroom
Off-street parking, wooden outbuilding (shed) and extensive outdoor space
LPG-fired boiler and radiators — not on mains gas; ongoing fuel costs
Septic tank drainage — requires regular maintenance and emptying
Very slow broadband and average mobile signal; rural, isolated location
Set within approximately four acres of private grounds, Oak Tree Barn is a recently completed single-storey conversion that blends modern finishes with rural living. The open-plan living areas, fitted kitchen with quartz worktops and integrated appliances, separate utility, and study make the layout practical for family life or country retreat use. The main bedroom includes an en-suite; two further double bedrooms and a family bathroom complete the accommodation.
The property is finished to a high standard (completed 2025) and is offered freehold and move-in ready. The detached building sits in a secluded hamlet location with extensive outdoor space suitable for equestrian, smallholding or leisure use, plus a wooden outbuilding and ample off-street parking. There is mains electric supply, LPG heating via boiler and radiators, and drainage to a septic tank.
Important practical points to note: the home relies on LPG rather than mains gas and uses a private septic tank, both of which have ongoing running and maintenance costs. broadband speeds are reported as very slow and mobile signal only average, which may affect home working. The property occupies an isolated, rural setting within an area described as deprived and with average local crime statistics.
For buyers seeking a spacious, single-storey countryside home with substantial grounds and contemporary interiors, Oak Tree Barn represents a rare opportunity. Those prioritising high-speed connectivity, mains gas, or immediate proximity to services should weigh the rural trade-offs before viewing.
4 bedroom house for sale in Over The Hill Farm Steadings, Newbottle, Houghton Le Spring, DH4 — £630,000 • 4 bed • 3 bath • 3580 ft²
4 bedroom barn conversion for sale in Auton Stile, Bearpark, Durham, DH7 — £550,000 • 4 bed • 2 bath • 1149 ft²
3 bedroom semi-detached house for sale in Bushblades Mews, Tantobie, Stanley, DH9 — £500,000 • 3 bed • 2 bath • 2307 ft²
4 bedroom link detached house for sale in Darlington Road, Durham, DH1 — £900,000 • 4 bed • 4 bath • 2391 ft²
4 bedroom barn conversion for sale in Shotley Bridge, Consett, DH8 — £540,000 • 4 bed • 2 bath • 1624 ft²
4 bedroom barn conversion for sale in North Barn, Bullions Farm, Near Shotley Bridge, Northumberland, DH8 — £1,000,000 • 4 bed • 3 bath • 3817 ft²






















































































