LA14 2QW - 2 bedroom terraced house for sale in Anchor Road, Barrowinf…

View on Property Piper

2 bedroom terraced house for sale in Anchor Road, Barrow-in-furness, LA14 2QW, LA14

Summary - 4, Anchor Road LA14 2QW

2 bed 1 bath Terraced

**Standout Features:**
- Chain-free sale for quick transactions
- Two reception rooms and two bedrooms
- Spacious bathroom with three-piece suite
- Enclosed rear yard with outbuilding
- Gas-fired central heating and UPVC double glazing
- Significant renovation potential

This charming mid-terraced home is a hidden gem for investors or first-time buyers looking for a project. Located conveniently within reach of local amenities and major employers like BAE Systems, this property presents an excellent opportunity for long-term buying or renting. The property encompasses two reception rooms—today's cozy living spaces with classic mid-century features—along with a functioning kitchen ready for your personal touch.

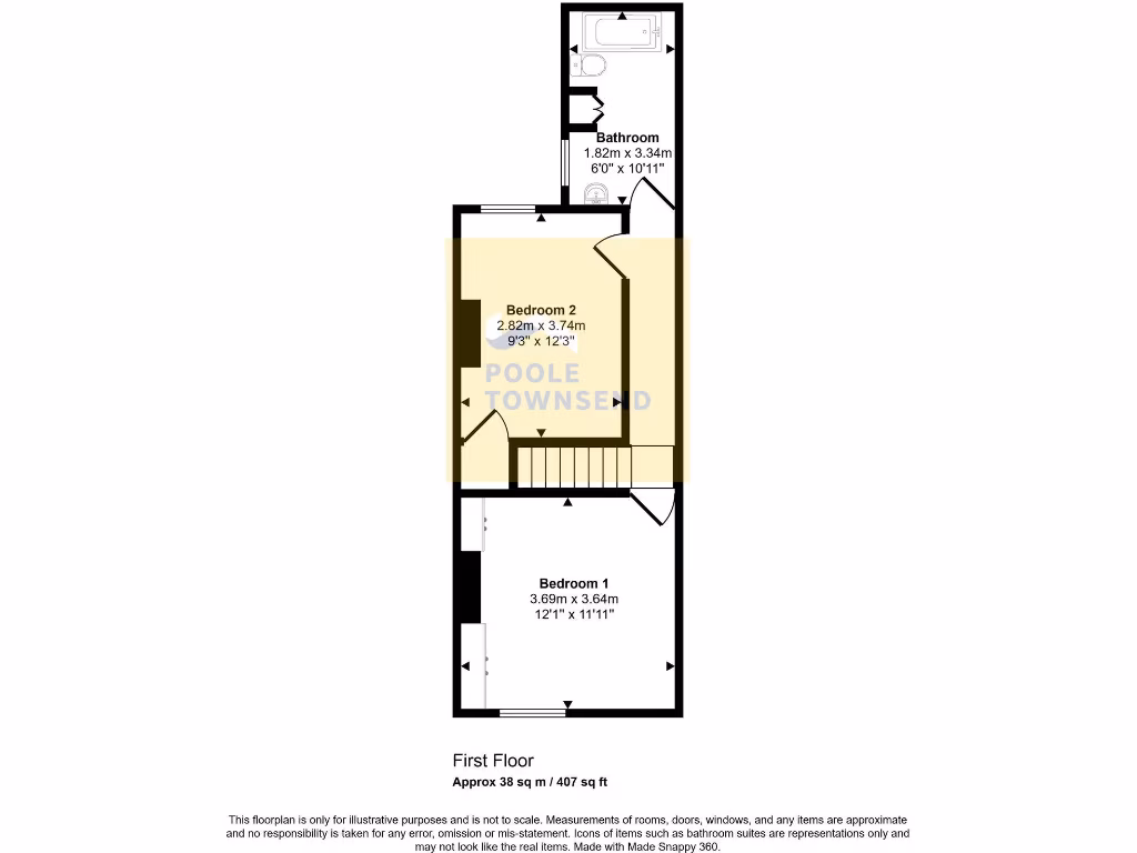
Ascend to two bedrooms that offer ample space, complemented by a generously sized bathroom. Although the property requires updating, it boasts essential features such as gas-fired central heating and UPVC double glazing, ensuring comfort in the colder months. An enclosed rear yard adds privacy and potential for outdoor enjoyment, with an outbuilding for extra storage or workshop space.

With average council tax and a supportive community nearby, including schools rated 'Good' by Ofsted, this property could be the perfect starter home for families or a strategic addition to your investment portfolio. Don’t miss out on this chain-free listing—seize the chance to create your ideal living space!

Property Details

Image Descriptions

Floorplan Description

Rooms

Textual Property Features

Detected Visual Features

EPC Details

Nearby Schools

Nearest Bars And Restaurants

,,,,}

Nearest General Shops

,,}

Nearest Grocery shops

,,}

Nearest Supermarkets

,,}

Nearest Religious buildings

,,}

Nearest Medical buildings

,,,}

Nearest Leisure Facilities

,,,,}

Nearest Tourist attractions

,,}

Nearest Train stations

,,,,}

Nearest Bus stations and stops

,,,,}

Nearest Hotels

,,}

Tags

Local Market Stats

AirBnB Data

Similar Properties

Meta

High Res Images

Compatible Images

Low res Images

Thumbnails

Raw Images

High Res Floorplan Images

Compatible Floorplan Images

Low res Floorplan Images

FloorplanImages Thumbnail

Raw Floorplan Images